

IC IMMOCONSULT e.K.
Herr Ron Kaufmann
034 ···
Nr. anzeigenPreise & Kosten
Provision für Mieter
provisionsfrei
Warum sehe ich diese Anzeige? – Du siehst diese Anzeige basierend auf Ihrer Navigation auf unserer Website und den Suchkriterien, die du verwendet hast.
Lage
Die angebotene Gewerbeeinheit befindet sich im beliebten Leipziger Waldstraßenviertel.
Das Waldstraßenviertel ist ein Wohngebiet der Stadt Leipzig nordwestlich der Innenstadt. Diese Viertel ist eine sehr bevorzugte Wohngegend. Imposante Villen zieren dieses Stadtgebiet und kennzeichnen die gehobene Wohnlage. Es gilt...
Die Ladenfläche
Kategorie
Laden
Bezug
sofort
Erdgeschoss
Energie & Heizung
Warum sehe ich diese Anzeige? – Du siehst diese Anzeige basierend auf Ihrer Navigation auf unserer Website und den Suchkriterien, die du verwendet hast.
Weitere Energiedaten
Energieträger
Gas
Heizungsart
Zentralheizung
Details
Objektbeschreibung
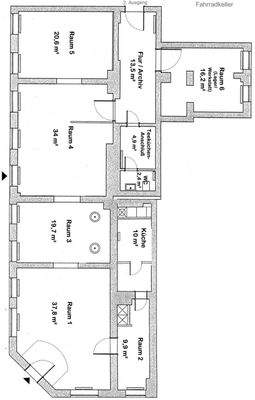
Diese tolle Gewerbeeinheit beinhaltet 6 Räume und befindet sich in sehr beliebter Lage - im Waldstraßenviertel von Leipzig.
Hier haben Sie freie Hand:
Für Ihre Ladenfläche oder auch für eine Praxis, ein Büro, etc...
Es gibt neben den Verkaufsflächen auch Büroräume, ein Lager, eine EBK, 1 extra Teeküchenanschluss...
Ausstattung
- kernsanierter Altbau
- Sanierung: 1999
- ca. 169 m²
- 6 Räume
- Boden: Fliesen und Laminat
- inkl. 1 Einbauküche
- 1 Teeküchenanschluss
- 1 WC (2. WC + Dusche möglich)
- schmiedeeisern vergitterte Fenster (zusätzlicher Einbruchschutz)
- Gewölbedecke
- ca. 2,60 m Raumhöhe
-...
Weitere Informationen
Sonstiges
Die von uns gemachten Angaben haben wir nach bestem Wissen und Gewissen nach Informationen des Vermieters/Verkäufers und den uns übergebenen Informationen zusammengestellt. Eine Gewähr für diese Angaben können wir nicht übernehmen. Wichtige Zahlen und Informationen sind am Objekt zu...
Anbieter der Immobilie
IC IMMOCONSULT e.K.
Hillerstraße 3, 04109 Leipzig

Online-ID: 2ey9w59
Referenznummer: 302g47#yWqe1d
Finde Angebote wie dieses
Hier geht es zu unserem Impressum, den Allgemeinen Geschäftsbedingungen, den Hinweisen zum Datenschutz und nutzungsbasierter Online-Werbung.