Version: 8.24.0Navigation ĂĽberspringen
479.990 €
5 Zimmer  â€˘  160 m²  â€˘  344,5 m² GrundstĂĽck
Immowelt logo

Doppelhaushälfte zum Kauf - Erstbezug
479990 €
3.000 €/m²
5 Zimmer  â€˘  160 m²  â€˘  344,5 m² GrundstĂĽck

KfW 40: Ihr Klimafreundliches Eigenheim auf 160m² - Eggolsheim

Ein Eigenheim, das durchdacht, günstig, energieeffizient und zukunftsfähig ist - das kann schon bald Ihr neues Zuhause sein! Die Deutsche Reihenhaus AG hat schon für über 11.500 Familien den Traum von den eigenen vier Wänden wahr gemacht.

Und im Preis inklusive ist viel mehr als nur die Wände:
- das Grundstück und das schlüsselfertige Haus (ohne Fliesen, Sanitärgegenstände und ohne
Bodenbelags-, Maler- und Tapezierarbeiten)
- die Anschluss- und ErschlieĂźungskosten
- ein durchdachtes Quartier mit einem harmonischen Erscheinungsbild, hochwertigen AuĂźenanlagen, Wegen und Zufahrten
- komfortable Fußbodenheizung in allen Räumen
- praktische Außenmöbel: Terrassenschrank als Sichtschutz zum Nachbarn und als Stauraum sowie eine zusätzliche Gartenbox
- gepflasterte Terrasse


Zusätzlich zu erwerben ist:
Eine Garage mit vorgelagertem Stellplatz für 24.990,00 -€


In unseren Exposés finden Sie ganz transparent alle Kosten, die auf Sie zukommen. Sie wählen Ihr Haus verbunden mit Garage und Stellplatz und Ihre Sonderausstattung - daraus ergibt sich der Gesamtbetrag. Es gibt keine versteckten Kosten.

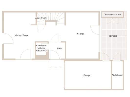
Merkmale

  • Bezug: 2025
  • 3 Geschosse
  • 344,5 m² GrundstĂĽck
  • offene KĂĽche
  • Kein Keller
  • 2 Stellplätze: Garage
  • Gäste-WC
  • Garten

Realisiere Dein Projekt

Bausubstanz und Energie

Energieausweis

A
  • Baujahr2024
  • Zustand der ImmobilieNeubau, Erstbezug
  • HaustypKfW 40
  • EnergieträgerSolar, Luft-/Wasser-Wärmepumpe
Immowelt logo

Preisdetails

Kaufpreis
479990 €
2.999,94 €/m²
Preis pro Stellplatz
24990 €
Provision für Käufer
2,38%
Geschätzte Gesamtkosten
517.814 €1
Kaufpreis
479.990 €
Notarkosten (1,5%)
7.200 €
Grunderwerbsteuer (3,5%)
16.800 €
Provision für Käufer (2,38%)
11.424 €
Grundbucheintrag (0,5%)
2.400 €
1Der angezeigte Wert ist eine automatisch berechnete Schätzung von immowelt.
2Bei den Angaben handelt es sich um ortsübliche Werte. Individuelle Kosten können abweichen.

Lage

address-icon
Langer Weg 1, Bammersdorf, Eggolsheim (91330)
Eggolsheim ist eine lebens- und liebenswerte Stadt im oberfränkischen Landkreis Forchheim in der Metropolregion Nürnberg. Das neue Wohn-Quartier liegt ein wenig südlich der Kernstadt in rund drei Kilometer Entfernung. Fühlen Sie sich von Beginn an wie zu Hause:

Schnell erreichen Sie die Geschäfte, die Sie im Alltag brauchen. Supermärkte, eine Bäckerei, eine Metzgerei und eine Apotheke sind ganz in der Nähe des Wohnparks. Die Innenstadt liegt nur 15 Minuten per Bus vom neuen Zuhause entfernt.
Die Infrastruktur rund um das neue Quartier punktet mit Familienfreundlichkeit. Kita, Grundschule und weiterführende Schulen sind in wenigen Minuten zu erreichen sind. In Sachen Naherholung ist der große Trumpf das naturnahe Leben mit all seiner Lebensqualität inmitten einer europäischen Metropolregion.

Sie sind in Eggolsheim gut angebunden an die Zentren der Region. Schnell geht es mit dem Auto nach Forchheim (rund sieben Minuten), in jeweils rund 20 Minuten nach Erlangen oder Bamberg. Bis nach NĂĽrnberg braucht es rund 40 Minuten.

Weitere Informationen

Besichtigungstermine Lernen Sie unser Konzept und die Deutsche Reihenhaus AG kennen.

Zur Terminabsprache wenden Sie sich bitte an ihren Ansprechpartner
Herr Michael Mecky
Mecky-Immobilien GmbH
Mobil: 0179 9771617
email: info@mecky-immobilien.de


Hinweis: Die hier gezeigten Bilder zeigen Ausschnitte unserer bereits fertiggestellten Wohnparks.

Weitere Services

Lust auf eine Besichtigung?
Eine Frage zur Immobilie?
Nachricht hinzufĂĽgen
Mit der Nutzung der oben angegebenen Telefonnummer oder durch Klicken auf „Kontaktieren“ akzeptierst Du die Allgemeinen Nutzungsbedingungen, denen Du jederzeit widersprechen kannst. Weitere Informationen zum Datenschutz

Ăśber den Anbieter

StraĂźburger Allee 67, 67657 Kaiserslautern
partner badge
Partnerschaft
Herr Michael Mecky
Herr Michael MeckyDein Kontakt
Online-ID: 2ezr45x
Referenznummer: 80644864
Deutsche Reihenhaus AG
title
Deutsche Reihenhaus AG
Bewertung: 4,6 von 5 Sternen
Nachricht hinzufĂĽgen
Mit der Nutzung der oben angegebenen Telefonnummer oder durch Klicken auf „Kontaktieren“ akzeptierst Du die Allgemeinen Nutzungsbedingungen, denen Du jederzeit widersprechen kannst. Weitere Informationen zum Datenschutz
Wie zufrieden bist du mit dieser Seite (nicht mit der Immobilie selbst)?