Version: 8.24.0Navigation überspringen
299.999 €
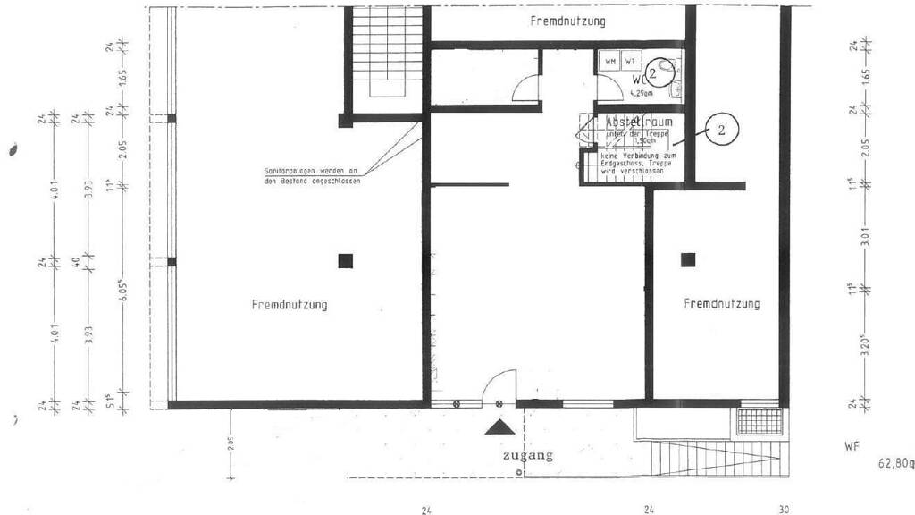
201 m² Bürofläche  •  teilbar ab 69 m²
Immowelt logo

Büro zum Kauf
299999 €
201 m² Bürofläche  •  teilbar ab 69 m²

Helle und großzügige Gewerbeeinheit in gefragter Lage von Aalen- Wasseralfingen zu verkaufen

Sind sind auf der Suche nach einer repräsantativen Büro- Praxis- oder Ladeneinheit ?

Sie bevorzugen einen separaten Zugang, Barrierefreiheit und vielfältige Gestaltungsmöglichkeiten ?

Sie schätzen eine zentrale und gut angebundene Lage ?

Dann haben wir hier vielleicht Ihre neue Immobilie und Geschäftsadresse zum Kauf im Angebot.

Gerne stehen wir Ihnen bei Rückfragen und einem Besichtigungswunsch zur Seite. Kommen Sie auf uns zu, wir freuen uns auf Sie.

Merkmale

  • frei ab sofort
  • Keller
  • Barrierefrei
  • Bodenbelag: Teppich
Über einen separaten Zugang unabhängig vom weiteren Gebäude gelangen Sie in eine helle und barrierefreie großzügige Fläche, welche nach Ihren Wünschen gestaltet und aufgeteilt werden kann.
Die Deckenhöhe ist überdurchschnittlich komfortabel und bietet die Möglichkeit sämtliche Verkabelungen und Leitungen über diese zu führen.
Weiter gibt es eine abgetrenntes WC samt Handwaschbecken.

Im Gartengeschoss erwarten Sie weitere Räume mit separatem Zugang ins Freie sowie einem weiteren Sanitärbereich und einer bereits vorbereiteten Küche.

In Summe lohnt sich eine Besichtigung vor Ort um sich selbst ein Bild von den unzähligen Gestaltungsmöglichkeiten machen zu können.

Wir freuen uns auf Sie.

Realisiere Dein Projekt

Bausubstanz und Energie

Der Anbieter hat keine Informationen zum Energieverbrauch bereit gestellt.
  • Baujahr1972
  • Zustand der ImmobilieGepflegt
  • HeizungsartZentralheizung
Immowelt logo

Preisdetails

Kaufpreis
299999 €
Provision für Käufer
4,76 %
Provision für Käufer: 4,76 % brutto, mindestens 6.000,00 € netto.
Auf den genannten Kaufpreis ist bei Vermittlung und oder
Kaufvertragsabschluss verdient und wird damit zur Zahlung an uns
fällig.
Geschätzte Gesamtkosten
314.279 €1
Kaufpreis
299.999 €
Provision für Käufer (4,76%)
14.280 €
1Der angezeigte Wert ist eine automatisch berechnete Schätzung von immowelt.
2Bei den Angaben handelt es sich um ortsübliche Werte. Individuelle Kosten können abweichen.

Lage

address-icon
Wasseralfingen (73433)
Der Anbieter hat die genaue Adresse nicht freigegeben
Im Zentrum von Wasseralfingen in unmittelbarer Nähe der öffentlichen Verkehrsmittel und sehr guter Infrastruktur wartet diese Gewerbeeinheit auf Ihren neuen Verwendungszweck.

Weitere Informationen

Sonstiges Besichtigungstermine:
Gerne stimmen wir gemeinsam mit Ihnen für Sie individuelle
Einzeltermine ab. Bitte kommen Sie hierzu auf uns zu.
Provision:
Die Vermittlungsprovision von insgesamt 4,76 % inklusive der
gesetzl. MwSt. auf den genannten Kaufpreis ist bei Vermittlung
und oder
Kaufvertragsabschluss verdient und wird damit zur Zahlung an
uns fällig.
Bilder und Fotos:
Bitte haben Sie Verständnis dafür, dass wir aus
Diskretionsgründen und auf Wunsch der derzeitigen Besitzer nur
wenige Bilder veröffentlichen!
Sonstiges:
Wir übernehmen keine Gewähr für die Richtigkeit und
Vollständigkeit der
Objektdaten diese erhalten wir vom Anbieter.
Das Angebot ist unverbindlich und nur für Sie bestimmt. Eine
Weitergabe an
Dritte verpflichtet zur Zahlung der Vermittlerprovision, falls
hierdurch
ein Vertragsabschluss entsteht. Die Fälligkeit der
Vermittlerprovision
ist bei Abschluss eines Kaufvertrages durch unsere Vermittlung
und
Nachweis gegeben. Unmittelbare Verhandlungen mit dem
Verkäufer
dürfen ausdrücklich nur unter Bezugnahme auf uns erfolgen.
Besichtigungen des Objektes sind nach Terminvereinbarung
ausdrücklich nur mit uns oder mit dem Verkäufer in unserem
Einverständnis möglich. Energiepass Energieausweis wird bei Besichtigung vorgelegt. Stichworte modernisiert: 2010

Weitere Services

Lust auf eine Besichtigung?
Eine Frage zur Immobilie?
Nachricht hinzufügen
Mit der Nutzung der oben angegebenen Telefonnummer oder durch Klicken auf „Kontaktieren“ akzeptierst Du die Allgemeinen Nutzungsbedingungen, denen Du jederzeit widersprechen kannst. Weitere Informationen zum Datenschutz

Über den Anbieter

Rudolf-Diesel-Straße 33, 71394 Kernen
partner badge
Partnerschaft
Herr Marc Maier
Herr Marc MaierDein Kontakt
Online-ID: 2aj595f
Referenznummer: 141111403
Marc Maier Immobilien
title
Marc Maier Immobilien
Bewertung: 4,6 von 5 Sternen
Nachricht hinzufügen
Mit der Nutzung der oben angegebenen Telefonnummer oder durch Klicken auf „Kontaktieren“ akzeptierst Du die Allgemeinen Nutzungsbedingungen, denen Du jederzeit widersprechen kannst. Weitere Informationen zum Datenschutz
Wie zufrieden bist du mit dieser Seite (nicht mit der Immobilie selbst)?