
OTTO Immobilien
Herr Helmut Wanjek
004 ···
Nr. anzeigenPreise & Kosten
inkl. Betriebskosten
Kaution
3-6 Bruttomonatsmieten
Provision für Mieter
3 BMM zzgl. 20 % USt.
Warum sehe ich diese Anzeige? – Du siehst diese Anzeige basierend auf Ihrer Navigation auf unserer Website und den Suchkriterien, die du verwendet hast.
Lage
Der Standort ist perfekt an das öffentliche Netz in Wien angebunden: durch den Verkehrsknotenpunkt Praterstern insbesondere mit den U-Bahn-Linien U1 und U2, sowie durch den Schnellbahn-Bahnhof Praterstern. Ein weiterer Pluspunkt ist die ausgezeichnete Anbindung mit nur einer Schnellbahn-Station (Wien Mitte Landstraße) an den...
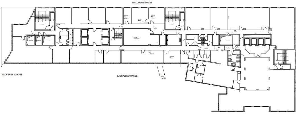
Büro-/Praxisfläche
Kategorie
Bürofläche
Bezug
nach Vereinbarung
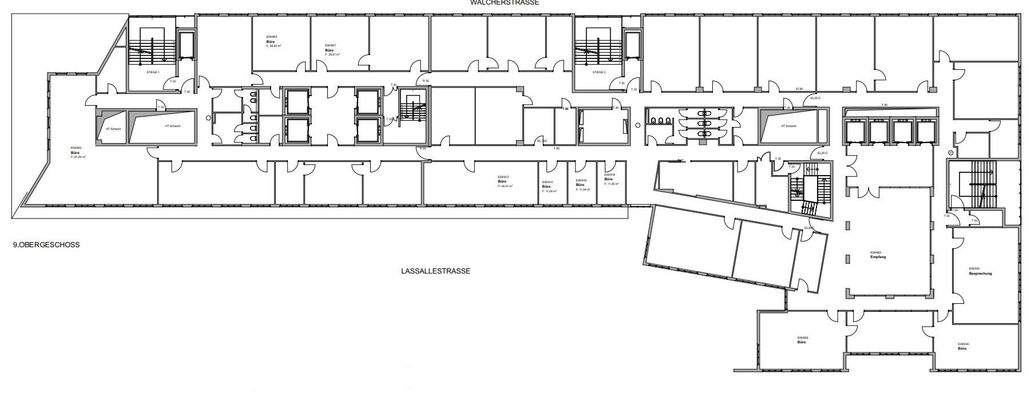
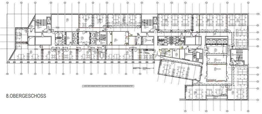
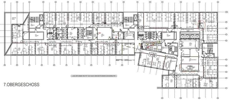
Geschoss
10. Geschoss
Energie & Heizung
Warum sehe ich diese Anzeige? – Du siehst diese Anzeige basierend auf Ihrer Navigation auf unserer Website und den Suchkriterien, die du verwendet hast.
Heizwärmebedarf (HWB)
58,20 kWh/(m²·a)
Gesamtenergieeffizienz (fGEE)
4,38
Weitere Energiedaten
Energieträger
Fernwärme
Details
Objektbeschreibung
Direkt angrenzend an den Praterstern bzw. nahe der Lassallestraße hat sich einer der größten Bürocluster Wien entwickelt. Die perfekte Infrastruktur zeichnet sich durch zahlreiche Restaurants, Geschäftsflächen, ein Hotel und ein Ärztezentrum in der nahen Umgebung aus. Die perfekte Verkehrsanbindung sowohl mit öffentlichen...
Ausstattung
- vorgehängte Kunststeinfassade
- großzügige Lobby
- Teppichboden auf Estrich, in Teilbereichen Doppelboden
- arbeitsplatzgerechte Beleuchtung
- Kabelkanäle
- Fernwärme
- Kühlung, Lüftung
- Tiefgarage mit 180 Stellplätzen
- Fahrradabstellraum mit Dusche
Preisinformation
Nettokaltmiete: 17.810,92 EUR
Weitere Informationen
Stichworte
Tiefgarage vorhanden, Nutzfläche: 1.254,29 m²
Anbieter der Immobilie
OTTO Immobilien
Riemergasse 8, 1010 WIEN
Online-ID: 2f32l5c
Referenznummer: IVG-O-04115/10
Finde Angebote wie dieses
Hier geht es zu unserem Impressum, den Allgemeinen Geschäftsbedingungen, den Hinweisen zum Datenschutz und nutzungsbasierter Online-Werbung.