

Kreis-Sparkasse Northeim
Herr Oliver Kirch
055 ···
Nr. anzeigenPreise & Kosten
Provision für Käufer
provisionsfrei
Lage
Groß Ellershausen liegt am Hang des Leinetales, fünf Kilometer westlich der Stadt Göttingen und ist seit 1973 Ortsteil dieser Stadt. Groß Ellershausen ist überwiegend Wohngemeinde, in der noch ein landwirtschaftlicher Vollbetrieb erhalten ist. Die Einwohnerzahl betrug in 2019 1347.
Direkt am Ort liegt ein Jogger-...
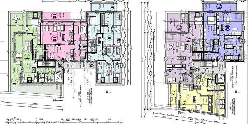
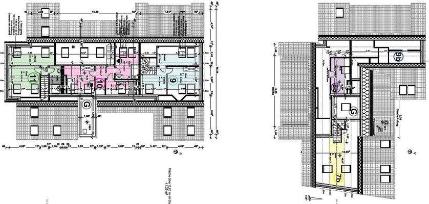
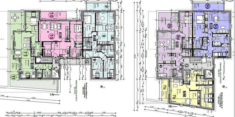
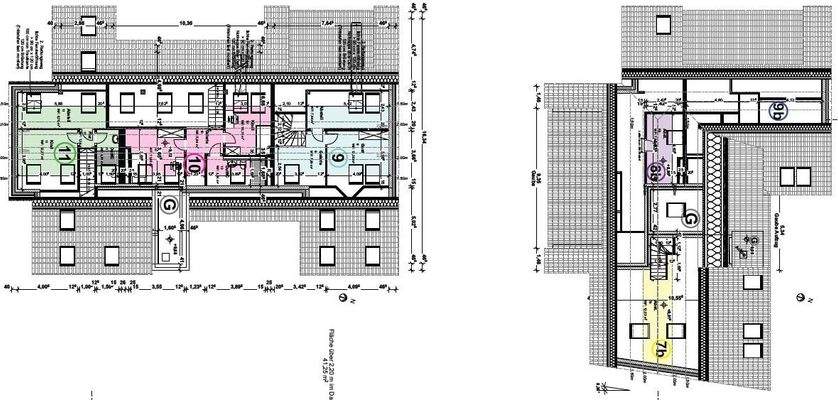
Die Wohnung
Wohnungslage
Dachgeschoss
Wohnanlage
Energie & Heizung
Warum sehe ich diese Anzeige? – Du siehst diese Anzeige basierend auf Ihrer Navigation auf unserer Website und den Suchkriterien, die du verwendet hast.
Energieausweis: für diesen Gebäudetyp nicht notwendig
Weitere Energiedaten
Heizungsart
Fußbodenheizung, Luft-/Wasser-Wärmepumpe
Details
Objektbeschreibung
Quartier am Damm!
Weitere Informationen und ggf. auch Videos vom Baufortschritt finden Sie hier https://wohnen-mitaussicht.de/
In guter Lage, nur wenige Minuten vom Kaufpark in Göttingen entfernt, entstehen am Hang des Leinetales in Göttingen/Groß Ellershausen eine Mehrfamilienhauswohnanlage im KfW 40 EE...
Ausstattung
Individuelle Ausstattungsmerkmale:
- SAT-TV
- Isolier-3 Fachverglasung
- PV-Anlage
- Dachterrasse
- Barrierefreiheit: Breite, rollstuhlgeeignete Türen , niedrige Schwellen zu den Balkonen u. Terrassen, ebenerdige Duschen, automatischer Türöffner an der Hauseingangstür
- hochwertiger Designbelag...
Preisinformation
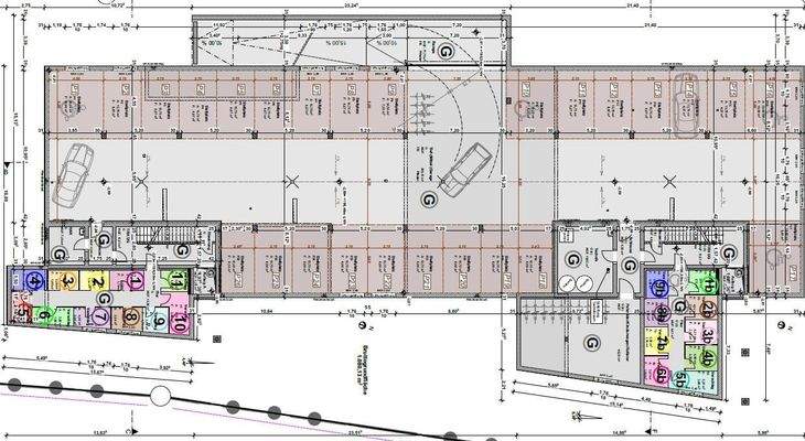
1 Tiefgaragenstellplatz, Kaufpreis: 30.000,00 EUR
Weitere Informationen
Sonstiges
Die Hausverwaltung übernimmt der Bauträger für das erste Jahr.
Ein normaler Tiefgaragenstellplatz kann für 30.000€ (22 Stück) und ein behindertengerechter Tiefgaragenstellplatz für 32.500€ (4 Stück) erworben werden.
Die Wohnungen sind bis 31.08.2026 bezugsfertig und das Gesamtobjekt ist bis...
Anbieter der Immobilie

Online-ID: 2f34c5f
Referenznummer: 4060-08B
Finde Angebote wie dieses
Hier geht es zu unserem Impressum, den Allgemeinen Geschäftsbedingungen, den Hinweisen zum Datenschutz und nutzungsbasierter Online-Werbung.