
Ottmar Handl Immobilienvermittlung
Herr Ottmar Handl
+49 ···
Nr. anzeigenPreise & Kosten
Provision für Käufer
Provisionsfreier Verkauf
Lage
Die hervorragende Lage im Herzen der Oberpfalz macht das ruhige Wohnen im Wohnpark Nittenau besonders interessant.
Nittenau zeichnet sich durch eine sehr gute Nahversorgung und einen hohen Freizeitwert aus.
Die örtliche Infrastruktur lässt keine Wünsche offen und ist weitgehend fußläufig zu erreichen.
Einkaufscenter...
Die Wohnung
Wohnungslage
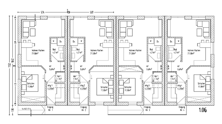
1. Geschoss
Wohnanlage
Details
Objektbeschreibung
Auf dem Gelände der ehemaligen Gärtnerei Höfler-Marold in Nittenau entstehen als weitere Neubaumaßnahme 8 Eigentumswohnung mit je 2 Zimmern als "Energieeffizienzhaus 40".
Die Bauweise erfolgt in Holzbau massiv oder in Holzständer mit niedrigem Energiebedarf.
Die Wohnflächen in den 2-Zimmer-Wohnungen betragen ca. 39 m²...
Ausstattung
Die Wohnung Nr. 2 im 1. Obergeschoss verfügt über ca. 41,93 m² Wohnfläche.
Diese sind wie folgt aufgeteilt:
Wohnen-Essen: 21,58 m²
Schlafen: 11,30 m²
Bad: 4,21 m²
Abstellraum: 1,15 m²
Flur/Windfang: 3,69 m²
Die Heizung erfolgt über...
Weitere Informationen
Sonstiges
Rechtshinweis:
Ein Energiepass ist nicht erforderlich - Grund: Neu zu errichtende Gebäude gem.
§ 80 (1) GEG
Da ich Objektangaben nicht selbst ermittle, übernehme ich hierfür keine Gewähr.
Die im Exposee dargestellten Grundrisse, Ansichten und Außenanlagen des Reihenhauses sind Visualisierungen...
Dokumente
Anbieter der Immobilie
Ottmar Handl Immobilienvermittlung
Am Steinbruch 31, 93192 Wald
Online-ID: 2f3yj5u
Referenznummer: 905#EsJGgT
Finde Angebote wie dieses
Hier geht es zu unserem Impressum, den Allgemeinen Geschäftsbedingungen, den Hinweisen zum Datenschutz und nutzungsbasierter Online-Werbung.