

Koengeter & Krekow Immobilien GmbH
Frau Celina Steffen
034 ···
Nr. anzeigenPreise & Kosten
Provision für Mieter
provisionsfrei
Warum sehe ich diese Anzeige? – Du siehst diese Anzeige basierend auf Ihrer Navigation auf unserer Website und den Suchkriterien, die du verwendet hast.
Lage
Reudnitz ist ein urbaner, grüner und kultureller Stadtteil im Herzen von Leipzig. Der Stadtteil, gelegen im Osten der sächsischen Metropole, erfreut sich wachsender Entfaltung. Mit fortschreitender Sanierung der Bausubstanz sowie dem Ausbau und der Neuanlage von städtischem Grünraum zieht Reudnitz Menschen aller Lebenslagen...
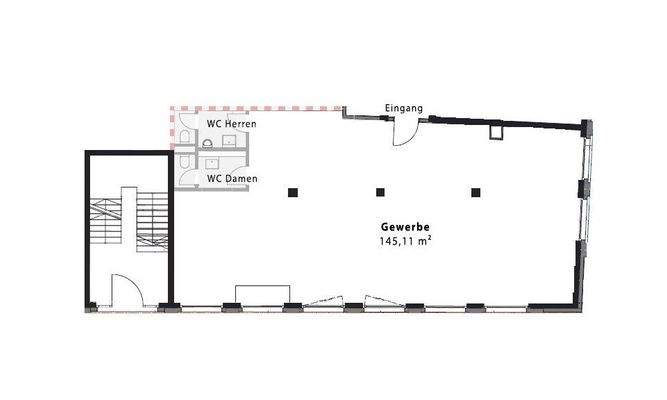
Die Ladenfläche
Kategorie
Laden
Baujahr
2021
Bezug
sofort
Erdgeschoss
Energie & Heizung
Warum sehe ich diese Anzeige? – Du siehst diese Anzeige basierend auf Ihrer Navigation auf unserer Website und den Suchkriterien, die du verwendet hast.
Energieausweis: für diesen Gebäudetyp nicht notwendig
Details
Objektbeschreibung
Exklusive Gewerbeflächen zur freien Gestaltung im Neubauprojekt "Prager RiebECK" - hier bleiben keine Wünsche offen!
Die angebotene Gewerbefläche im Erdgeschoss mit ca. 145 m² offeriert vielfältige Gestaltungsmöglichkeiten und bietet Unternehmen die ideale Plattform, ihre Geschäftsideen in einem attraktiven und...
Ausstattung
Gewerbeeinheit im Wohnquartier "Prager RiebECK"
- Erdgeschossfläche von ca. 145 m²
- Rohbauzustand
- Selbstausbau für bis zu 4 mietfreie Monate
- barrierefrei
- Aufzug
- TG-Stellplätze (je nach Verfügbarkeit)
- dreifachverglaste, teils bodentiefe Fenster
- teils elektrischer Sonnenschutz
-...
Weitere Informationen
Sonstiges
Die Einheit wird zzgl. Mehrwertsteuer vermietet.
Der Energieausweis wird aktuell erstellt und kann anschließend bei Interesse vorgelegt werden.
Stichworte
Tiefgarage vorhanden, Wohnfläche: 62,40 m², Anzahl der Schlafzimmer: 1, Anzahl der Badezimmer: 1, Bundesland: Sachsen, 8 Etagen, Wohnungsnr....
Anbieter der Immobilie

Online-ID: 2f4gm5r
Referenznummer: 6283
Finde Angebote wie dieses
Hier geht es zu unserem Impressum, den Allgemeinen Geschäftsbedingungen, den Hinweisen zum Datenschutz und nutzungsbasierter Online-Werbung.