Version: 8.24.0Navigation überspringen
5.500.000 €
6 Zimmer  •  270 m²
Immowelt logo

Wohnung zum Kauf
5500000 €
20.370 €/m²
6 Zimmer  •  270 m²

A Masterpiece of Modern Luxury

Merkmale

  • Personenaufzug
  • Fernblick
  • möbliert
  • voll klimatisiert
  • Bodenbelag: Parkett
  • Alarmanlage
  • Sauna
  • Swimmingpool

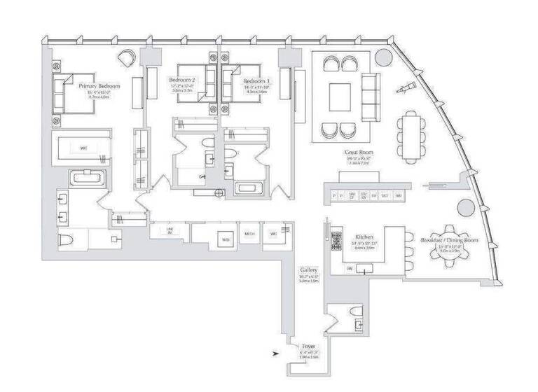
Grundrisse

Grundrisse
1 / 1

Realisiere Dein Projekt

Bausubstanz und Energie

Der Anbieter hat keine Informationen zu Energieverbrauch oder Zustand der Immobilie bereit gestellt.
Immowelt logo

Preisdetails

Kaufpreis
5500000 €
20.370,37 €/m²
Provision für Käufer
Provisionsfällig

Lage

address-icon
New York City
Fallback location image
Die Karte ist nicht verfügbar.

Weitere Informationen

A Masterpiece of Modern Luxury 35 Hudson Yards ist ein beeindruckendes Zeugnis architektonischer Brillanz und moderner Raffinesse. Entworfen vom legendären David M. Childs, FAIA, von Skidmore, Owings & Merrill LLP-berühmt für Ikonen wie den Burj Khalifa und das One World Trade Center-steht der Turm als höchstes Wohnwunder in Hudson Yards. Seine skulpturalen Kalksteinpfeiler und eleganten Kurven erinnern an die Anmut von Segeln und spiegeln harmonisch die atemberaubenden Aussichten auf den Hudson River, die Skyline von Manhattan und die lebendige Gemeinschaft von Hudson Yards wider.
Ob in seinen luxuriösen Innenräumen oder zwischen seinen friedvollen Gärten, definiert 35 Hudson Yards urbanes Wohnen neu-als eine beispiellose Harmonie aus Eleganz, Komfort und Natur, geschaffen für die wenigen Auserwählten, die es ihr Zuhause nennen.

Für mehr Informationen: https://corcoranmagri.com/de/immobile/a-masterpiece-of-modern-luxury-ap001360-2/ Manhattan, NYC Manhattan, das pulsierende Herz von New York City, ist ein weltbekanntes Zentrum für Kultur, Wirtschaft und Unterhaltung. Diese ikonische Insel im Hudson River zieht Besucher aus der ganzen Welt an und ist berühmt für ihre beeindruckende Skyline, ihre historischen Sehenswürdigkeiten und ihre dynamische Atmosphäre.

Manhattan ist eine wahre Schmelztiegel der Kulturen, beeinflusst von den unterschiedlichsten internationalen Gemeinschaften. Zu den Highlights gehören das berühmte Times Square, der Central Park – eine grüne Oase mitten in der Stadt – und das Finanzviertel Wall Street, Heimat der New Yorker Börse und der weltweit größten Finanzunternehmen.

Das Viertel Midtown Manhattan beherbergt weltbekannte Wahrzeichen wie das Empire State Building, das Rockefeller Center und die St. Patrick’s Cathedral. Soho und Greenwich Village sind bekannt für ihre charmanten Straßen, trendigen Boutiquen und kreativen Kunstszene. Das Theaterdistrikt Broadway zieht jedes Jahr Millionen von Theaterliebhabern an, während Chinatown und Little Italy mit ihrem einzigartigen Charme und kulinarischen Erlebnissen beeindrucken.

Was die Natur betrifft, so bietet Manhattan neben dem Central Park zahlreiche kleine grüne Flächen wie den Battery Park mit Blick auf die Freiheitsstatue. Auch die Küstenlinie entlang des Hudson Rivers sorgt für einen schönen Ausblick auf die Stadt und ist ideal für Spaziergänge und Radtouren.

Manhattan ist nicht nur ein Zentrum für Kultur und Freizeit, sondern auch für Wirtschaft und Innovation. Das Financial District und der Silicon Alley machen die Insel zu einem globalen Wirtschaftsmotor, während auch die berühmte Fifth Avenue als Einkaufsstraße und Modehauptstadt bekannt ist.
Mit einer Mischung aus Natur, Kultur, Kunst, Geschichte und wirtschaftlicher Bedeutung zieht Manhattan jedes Jahr Millionen von Besuchern an und bleibt ein unverzichtbares Ziel für alle, die das wahre Wesen von New York erleben möchten. Kundenbewertung Hallo Maddalena,

Vielen Dank nochmal für die professionelle und angenehme Betreuung und Abwicklung meines Hausverkaufs. Kompliment an Dich und dein Team!

Maximilian Kleber Stichworte Wellness: Wellnessbereich

Weitere Services

Lust auf eine Besichtigung?
Eine Frage zur Immobilie?
Nachricht hinzufügen
Mit der Nutzung der oben angegebenen Telefonnummer oder durch Klicken auf „Kontaktieren“ akzeptierst Du die Allgemeinen Nutzungsbedingungen, denen Du jederzeit widersprechen kannst. Weitere Informationen zum Datenschutz

Über den Anbieter

Corso Italia, 136, 37016 GARDA
Frau Maddalena Magri
Frau Maddalena MagriDein Kontakt
Online-ID: 2nyur5r
Referenznummer: AP001360
IMMOBILIARE MAGRI SRL
title
IMMOBILIARE MAGRI SRL
Nachricht hinzufügen
Mit der Nutzung der oben angegebenen Telefonnummer oder durch Klicken auf „Kontaktieren“ akzeptierst Du die Allgemeinen Nutzungsbedingungen, denen Du jederzeit widersprechen kannst. Weitere Informationen zum Datenschutz
Wie zufrieden bist du mit dieser Seite (nicht mit der Immobilie selbst)?