
Hermann Lott Auktionator und Grundstücksmakler KG
Herr Hermann Lott
044 ···
Nr. anzeigenPreise & Kosten
Provision für Käufer
Die Käuferprovision beträgt 3,57 % inkl. 19 % MwSt. vom beurkundeten Kaufpreis. inkl. MwSt.
Lage
Sämtliche Versorgungseinrichtungen sind wie auch die medizinische Grundversorgung (Allgemeinmediziner, Zahnärzte, Apotheke), Kindergarten, Grundschule, Haupt- und Realschule am Ort und befinden sich in einem Umkreis von nur ca. 600 und sind bequem zu Fuß zu erreichen.
Auch der Bahnhof ist fußläufig zu...
Das Haus
Kategorie
Doppelhaushälfte
Baujahr
1961
Bezug
nach Vereinbarung
Energie & Heizung
Warum sehe ich diese Anzeige? – Du siehst diese Anzeige basierend auf Ihrer Navigation auf unserer Website und den Suchkriterien, die du verwendet hast.
Energieausweistyp
Bedarfsausweis
Gebäudetyp
Wohngebäude
Baujahr laut Energieausweis
1961
Wesentliche Energieträger
ERDGAS_LEICHT
Gültigkeit
bis 07.07.2034
Effizienzklasse
G
Endenergiebedarf
230,26 kWh/(m²·a)
Weitere Energiedaten
Haustyp
Massivhaus
Details
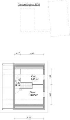
Objektbeschreibung
Diese teilmodernisierte Doppelhaushälfte mit mit Nebengebäude und Garage befindet sich an einer verkehrsberuhigten Sackgasse im Ortszentrum von Augustfehn.
Gliederung der Räumlichkeiten:
Kellergeschoss:
Unterhalb der Küche befindet sich ein Kellerraum.
Erdgeschoss:
Wohnzimmer, Eingangsflur, Küche...
Preisinformation
1 Garagenstellplatz
Weitere Informationen
Stichworte
Nutzfläche: 24,00 m², Anzahl der Schlafzimmer: 2, Anzahl der Badezimmer: 1, Anzahl Terrassen: 1
Anbieter der Immobilie
Hermann Lott Auktionator und Grundstücksmakler KG
Mühlenstraße 15, 26689 Apen - Augustfehn
Online-ID: 2f5cf54
Referenznummer: 8376
Finde Angebote wie dieses
Hier geht es zu unserem Impressum, den Allgemeinen Geschäftsbedingungen, den Hinweisen zum Datenschutz und nutzungsbasierter Online-Werbung.