

TOP SPEED Immobilien e.U.
Herr Thomas Lasser
+43 ···
Nr. anzeigenPreise & Kosten
Provision für Käufer
3 % zzgl. 20% USt. inkl. MwSt.
Lage
Die Marktgemeinde Altenmarkt im Pongau befindet sich im österreichischen Bundesland Salzburg und ist von den imposanten Bergen der Hohen Tauern umgeben. Die Gemeinde ist bekannt für ihre wunderschöne Landschaft und bietet eine Vielzahl von Outdoor-Aktivitäten wie Wandern, Radfahren und Skifahren.
Altenmarkt im Pongau...
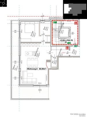
Die Wohnung
Wohnanlage
Energie & Heizung
Warum sehe ich diese Anzeige? – Du siehst diese Anzeige basierend auf Ihrer Navigation auf unserer Website und den Suchkriterien, die du verwendet hast.
Heizwärmebedarf (HWB)
36,00 kWh/(m²·a)
Gesamtenergieeffizienz (fGEE)
0,58
Weitere Energiedaten
Energieträger
Pellets
Heizungsart
offener Kamin, Zentralheizung
Details
Objektbeschreibung
Willkommen im "das Alpineo" Altenmarkt-Zauchensee - Ihrem exklusiven Refugium in den österreichischen Alpen, das Ihnen die begehrte Möglichkeit eines Zweitwohnsitzes bietet. Genießen Sie erstklassigen Wohnkomfort und die Freiheit, ein eigenes Domizil in einer der schönsten Alpenregionen zu besitzen.
Dieses...
Ausstattung
Die Wohnung ist wie folgt aufgeteilt:
- Wohn-/ Essbereich
- Schlafzimmer
- Badezimmer
- Gäste WC
- Vorraum
- Balkon
- Kelllerabteil
- 1 Tiefgaragenstellplatz
- 1 Außenstellplatz
Preisinformation
1 Stellplatz, Miete: 10.000,00 EUR
1 Tiefgaragenstellplatz, Kaufpreis: 29.000,00 EUR
Weitere Informationen
Stichworte
Anzahl der Schlafzimmer: 1, Anzahl der Badezimmer: 1, Anzahl der separaten WCs: 1, Balkon-Terrassen-Fläche: 33,60 m², Bundesland: Salzburg, Distanz zur nächsten Einkaufsmöglichkeit: 3.90, Distanz zum Flughafen: 71.70, Distanz zur Autobahn: 4.40, Distanz zum Bus: 0.40, Distanz vom Zentrum: 3.70
Anbieter der Immobilie

Online-ID: 2f5e65y
Referenznummer: 1948_4
Finde Angebote wie dieses
Günstige Immobilienfinanzierung einfach online berechnen
Persönliches Angebot berechnenWarum sehe ich diese Werbung? – Du siehst diese Werbung basierend auf Deiner Navigation auf unserer Website und der von Dir verwendeten Suchkriterien.
Diese Werbung wird bezahlt von durchblicker
Werbung melden
Hier geht es zu unserem Impressum, den Allgemeinen Geschäftsbedingungen, den Hinweisen zum Datenschutz und nutzungsbasierter Online-Werbung.