
CENTURY 21 André & Bihn Immobilien
Team André & Bihn Immobilien
061 ···
Nr. anzeigenPreise & Kosten
Provision für Käufer
Bitte beachte, das Angebot kann bei Vertragsabschluss die Zahlung einer Provision beinhalten. Weitere Informationen erhältst Du vom Anbieter.
Lage
Egelsbach, eine charmante Gemeinde im Landkreis Offenbach, bietet eine ideale Wohnlage für alle, die eine ruhige und gut angebundene Umgebung suchen. Die ländliche Idylle, kombiniert mit der Nähe zu Frankfurt am Main, macht Egelsbach zu einem begehrten Wohnort. Der Ort ist von einer schönen Landschaft mit Feldern, Wäldern und...
Das Renditeobjekt
Kategorie
Mehrfamilienhaus
Baujahr
1900
Energie & Heizung
Warum sehe ich diese Anzeige? – Du siehst diese Anzeige basierend auf Ihrer Navigation auf unserer Website und den Suchkriterien, die du verwendet hast.
Weitere Energiedaten
Energieträger
Gas
Heizungsart
Zentralheizung
Details
Objektbeschreibung
*Provisionsfrei für den Käufer*
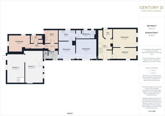
Dieses um 1900 errichtete Gebäudeensemble begeistert durch seinen historischen Charakter und vielfältige Nutzungsmöglichkeiten. Auf einem ca. 558 m² großen Grundstück im Zentrum von Egelsbach befinden sich insgesamt drei Wohneinheiten. Das ca. 100 m² große Vorderhaus, sowie die beiden...
Ausstattung
Folgende umfassende Modernisierungsmaßnahmen wurden bereits vorgenommen:
- 1997: Erneuerung des Dachstuhls inkl. Dacheindeckung
- 2018: Installation einer neuen Viessmann Gas-Zentralheizung
- 2018: Teilerneuerung der Wasser- und Heizungsleitungen
- 2018: Vorbereitung für ein Badezimmer im...
Preisinformation
1 Stellplatz
Weitere Informationen
Stichworte
Stellplatz vorhanden, Wohnfläche: 176,00 m², Nutzfläche: 63,00 m², vermietbare Fläche: 176,00 m², Anzahl der Wohneinheiten: 3, 2 Etagen, Distanz zur nächsten Einkaufsmöglichkeit: 0.4, Distanz zum Kindergarten: 0.375, Distanz zur Grundschule: 0.65, Distanz zum Bus: 0.125, Distanz zur Autobahn: 0.9
Anbieter der Immobilie
Online-ID: 2f68f5y
Referenznummer: C21_BEWA_40064
Finde Angebote wie dieses
Hier geht es zu unserem Impressum, den Allgemeinen Geschäftsbedingungen, den Hinweisen zum Datenschutz und nutzungsbasierter Online-Werbung.