
Wagner & Bichert GmbH
Herr Paul Bichert
017 ···
Nr. anzeigenPreise & Kosten
Provision für Käufer
provisionsfrei
Lage
Ebsdorf bietet eine gute Infrastruktur mit:
-Kindergarten
-Grundschule
-Bäcker
-Metzger
-Apotheke
-Arzt für Allgemeinmedizin
-Fitnessstudio
In unmittelbarer Nähe in Heskem (ca. 3km), auch gut über einen Radweg zu erreichen, finden Sie:
-Edeka Supermarkt
-Tankstelle mit Shop und...
Das Haus
Kategorie
Reihenmittelhaus
Geschosse
2 Geschosse
Baujahr
2025
Energie & Heizung
Warum sehe ich diese Anzeige? – Du siehst diese Anzeige basierend auf Ihrer Navigation auf unserer Website und den Suchkriterien, die du verwendet hast.
Weitere Energiedaten
Haustyp
KfW 55, Massivhaus
Energieträger
Elektro
Heizungsart
Fußbodenheizung, Luft-/Wasser-Wärmepumpe
Details
Objektbeschreibung
Objektbeschreibung
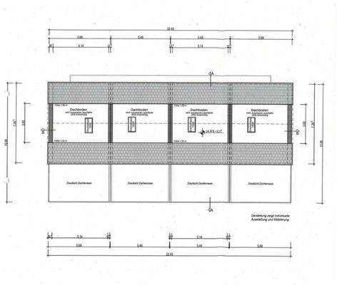
Entdecken Sie Ihr neues Zuhause in der Sonnenscheingemeinde Ebsdorfergrund, im malerischen Ebsdorf. Hier erwarten Sie Reihenhäuser mit 4 und 5 Einheiten, jeweils mit einer großzügigen Wohnfläche von ca. 137qm. Erdgeschoss mit Terrasse und kleinem Garten, sowie eine Dachterrasse im Dachgeschoss. Genießen...
Weitere Informationen
Besichtigungstermine
nach Vereinbarung
Weitere Informationen
-Es besteht die Möglichkeit das Haus als Ausbauhaus zu Kaufen Bodenbeläge, Wandbeläge, Fliesen und Dämmung inklusive Rigips Decke. 40.000€ Ersparnis.
KfW-Förderung
Ab 16. Dezember 2025 können Käufer wieder von der beliebten...
Anbieter der Immobilie
Wagner & Bichert GmbH
Nordecker Weg 16, 35085 Ebsdorfergrund-Dreihausen
Online-ID: 2f6hg57
Finde Angebote wie dieses
Hier geht es zu unserem Impressum, den Allgemeinen Geschäftsbedingungen, den Hinweisen zum Datenschutz und nutzungsbasierter Online-Werbung.