Wer kann einen Wohnberechtigungsschein beantragen? Ein Haushalt mit bis zu zwei Personen kann mit einem Einkommen von bis zu 55.250 Euro brutto pro Jahr einen WBS erhalten. Die Einkommensgrenze erhöht sich bei einem 3-Personen-Haushalt auf 64.250 Euro und bei einem 4-Personen-Haushalt auf 73.250 €. Sie erhalten den WBS bei Ihrer zuständigen Gemeinde.
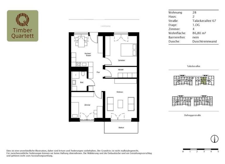
Diese 4-Zimmer-Wohnung ist Teil des Neubauprojekts TimberQuartett in Künzelsau. Sie ist kompakt und komfortabel gestaltet und verfügt über ein Elternschlafzimmer und ein zusätzliches Zimmer, das entweder als Kinderzimmer oder als individueller Raum genutzt werden kann. Der Wohnbereich ist vom Koch- und Essbereich getrennt und bietet Zugang zum Balkon oder zur Terrasse. Die Wohnung verfügt zusätzlich über ein Badezimmer sowie eine praktische Abstellkammer.
Merkmale
Bezug: ab sofort
1. Geschoss
Personenaufzug
Balkon
Alle Besonderheiten auf einen Blick: Fußbodenheizung in der ganzen Wohnung Spiegel mit Spiegelleuchte und Dusche mit Glas-Spritzschutz oder Vorgangstange im Bad Gegensprechanlage Highspeed-Glasfaser-Anschluss
Grundrisse
Grundrisse
1 / 1
Bausubstanz und Energie
Energieausweis
A+
Baujahr2022
Zustand der ImmobilieNeubau, neuwertig
EnergieträgerElektro
Mietkosten
Warmmiete
916,07 €
Kaltmiete
7,04 €/m²
611,07 €
Nebenkosten
305 €
Heizkosten
in Warmmiete enthalten
Kaution
1833,216
Lage
Taläckerallee 67, Künzelsau (74653)
Die großzügige Freiflächenplanung und die Hofanlage zwischen den Gebäuden schaffen Freiraum für Generationen und eine gelungene Kombination persönlicher Freiheit und beschütztem Wohnen - in ruhiger Lage und guter Nachbarschaft.
Weitere Informationen
Sonstiges
Bitte beachten Sie, dass es sich hierbei um geförderte Wohnungen handelt, für die Anmietung muss ein Wohnberechtigungsschein vorliegen. Wir bitten Sie Terminanfragen über das Kontaktformular zu senden. Bitte bringen Sie zu dem Besichtigungstermin die unterschriebene Baustellenbesuchserklärung mit.
Bei den Bildern handelt es sich um unverbindliche Visualisierungen (Visualisierung TOWN) und Bilder der Musterwohnung. Gerne können Sie sich im Zuge einer Besichtigung der Musterwohnung selbst vom TimberQuartett überzeugen.
HAFTUNGSAUSSCHLUSS: Diese Anzeige dient nur der ersten Information und stellt kein Vertragsangebot dar. Die Anzeige begründet keine vertraglichen Ansprüche. Der Inhalt und die Angaben wurden nach bestem Wissen und Gewissen ermittelt. Für Richtigkeit und Vollständigkeit wird keine Haftung übernommen.
Stichworte
Anzahl der Schlafzimmer: 2, Anzahl der Badezimmer: 1, Anzahl Balkone: 1, 4 Etagen