
Erich Panik Immobilien GmbH
Herr Erich Panik
038 ···
Nr. anzeigenPreise & Kosten
Verhandlungsbasis
Provision für Käufer
Mit der Inanspruchnahme der Maklerdienste kommt ein Maklervertrag zustande, aufgrund dessen der Auftraggeber (Käufer) verpflichtet ist, an den Makler eine Provision in Höhe von 7,14 % des Kaufpreises incl. MwSt. zu zahlen.
Lage
Die Gewerbeeinheit befindet sich in einem Altbau in einem belebten Kiez in Berlin Alt-Hohenschönhausen. Das historische Stadtviertel zeichnet sich durch seine zentrale Lage, direkte Nähe zu Friedrichshain und Weißensee und durch eine sehr gute Infrastruktur aus.
Im Umkreis sind moderne Wohnkomplexe entstanden und...
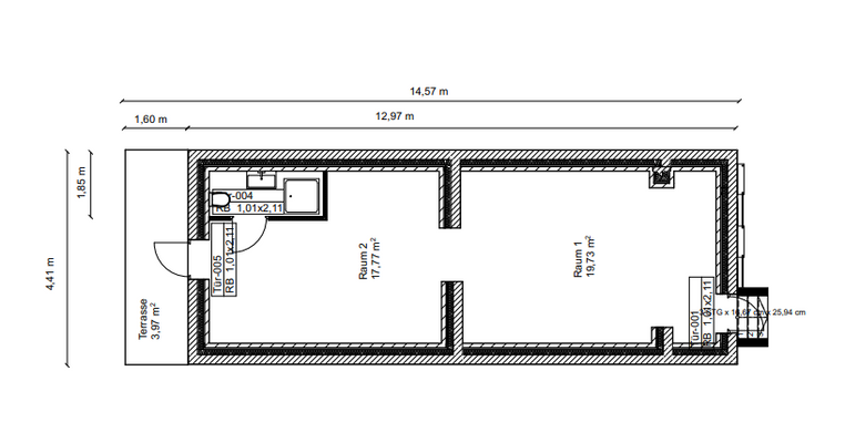
Büro-/Praxisfläche
Baujahr
1920
Bezug
sofort
Derzeitige Nutzung
frei
Geschoss
Erdgeschoss
Energie & Heizung
Warum sehe ich diese Anzeige? – Du siehst diese Anzeige basierend auf Ihrer Navigation auf unserer Website und den Suchkriterien, die du verwendet hast.
Energieausweistyp
Verbrauchsausweis
Gebäudetyp
Wohngebäude
Baujahr laut Energieausweis
1920
Wesentliche Energieträger
Erdgas
Gültigkeit
19.02.2019 bis 19.02.2029
Effizienzklasse
C
Endenergieverbrauch
90,00 kWh/(m²·a)
Weitere Energiedaten
Energieträger
Gas
Heizungsart
Zentralheizung
Details
Objektbeschreibung
Objektbeschreibung
Zum Verkauf steht eine vielseitig nutzbare Gewerbeeinheit, als Büro, Praxis, AirBnB, in einem sanierten und modernisierten Wohn- und Geschäftshaus, das ca. 1920 erbaut und im Jahr 2018 umfassend modernisiert wurde.
Die Einheit befindet sich im Erdgeschoss mit großem Schaufenster, liebevoll...
Weitere Informationen
Sonstiges
Diese Einheit wurde 2019 modernisiert und bietet eine zeitgemäße Ausstattung, die modernen Anforderungen entspricht. Direkt gegenüber Tramhaltestelle Sandinostraße, mit der man eine schnelle Anbindung zur Ringbahn S-Landsberger Allee (5min.) und zum Alexanderplatz hat (20min.).
Stichworte
Zustand...
Dokumente
Anbieter der Immobilie
Erich Panik Immobilien GmbH
Hermannstr. 24, 18055 Rostock
Online-ID: 2fbr85m
Referenznummer: 3066
Finde Angebote wie dieses
Hier geht es zu unserem Impressum, den Allgemeinen Geschäftsbedingungen, den Hinweisen zum Datenschutz und nutzungsbasierter Online-Werbung.