

Zenker & Günsch Immobilien GbR
Herr Dominik Wittmann
(08 ···
Nr. anzeigenPreise & Kosten
Provision für Käufer
3,57 % inkl. MwSt.
Lage
Die Gemeinde Karlsfeld liegt direkt an der westlichen Stadtgrenze von München und bietet erstklassige Verbindungen, sowie alle infrastrukturellen Vorzüge. Die S-Bahn ist in ca. 10 Minuten erreicht und über die Autobahn A99 sind auch Ziele wie der Flughafen München und die Messe München hervorragend erreichbar. Bis zum...
Das Haus
Kategorie
Reihenmittelhaus
Baujahr
2025
Bezug
nach Fertigstellung
Energie & Heizung
Warum sehe ich diese Anzeige? – Du siehst diese Anzeige basierend auf Ihrer Navigation auf unserer Website und den Suchkriterien, die du verwendet hast.
Weitere Energiedaten
Heizungsart
Luft-/Wasser-Wärmepumpe, Zentralheizung
Details
Objektbeschreibung
Kaum eine Investition ist - im wahrsten Sinne des Wortes - so grundlegend, wie die Entscheidung für ein Eigenheim.
Hier sollte einfach alles passen. Schließlich geht es um die Erfüllung eines Lebenstraums.
Dieses topmoderne und hochwertige Bauvorhaben (GEG 2020) ensteht unter der Leitung des Architekten und...
Ausstattung
- ausschließliche Verwendung von deutschen Markenprodukten
- Massivbauweise
- inkluse Malerarbeiten und Bodenbelege
- Kunststofffenster aus 5 Mehrkammerprofilen mit einer Dreischeiben-Wärmeschutzverglasung
- Luft-Wasser-Wärmepumpe
- Warmwasser-Fußbodenheizung in allen Wohnräumen
-...
Weitere Informationen
Sonstiges
Wir hoffen Ihr Interesse geweckt zu haben und freuen uns auf Ihren Kontakt.
Für weitere Rückfragen steht Ihnen unser Herr Wittmann unter 08131 / 45 45 28 oder 0172 / 280 6642 jederzeit gerne zur Verfügung.
Stichworte
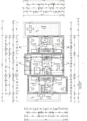
Stellplatz vorhanden, Nutzfläche: 46,00 m², Anzahl der Schlafzimmer: 2, Anzahl...
Anbieter der Immobilie
Zenker & Günsch Immobilien GbR
Schleißheimer Str. 6, 85221 Dachau

Online-ID: 2fcbk5l
Referenznummer: 4889
Finde Angebote wie dieses
Hier geht es zu unserem Impressum, den Allgemeinen Geschäftsbedingungen, den Hinweisen zum Datenschutz und nutzungsbasierter Online-Werbung.