
bmb GmbH Bauträger u. Projektentwicklung
Herr Paul Calmes
+49 ···
Nr. anzeigenDieses Angebot ist Teil des Neubauprojekts
Wohnen am Hanauer Platz in Mannheim
Preise & Kosten
Provision für Käufer
provisionsfrei
Lage
Im Stadtteil Waldhof. Im direkten Umkreis befindet sich ein breites Angebot an
individuellem Einzelhandel. Medizinische Versorgung, ÖPNV, das Waldhofer
Hallenbad, sowie der Käfertaler Wald sind fußläufig zu erreichen.
Die Wohnung
Wohnungslage
4. Geschoss
Bezug
2025
Derzeitige Nutzung
frei
Wohnanlage
Das Neubauprojekt
Energie & Heizung
Warum sehe ich diese Anzeige? – Du siehst diese Anzeige basierend auf Ihrer Navigation auf unserer Website und den Suchkriterien, die du verwendet hast.
Energieausweistyp
Bedarfsausweis
Gebäudetyp
Wohngebäude
Baujahr laut Energieausweis
2024
Wesentliche Energieträger
Wärmepumpe / Photovoltaik
Gültigkeit
22.02.2023 bis 31.12.2025
Effizienzklasse
A+
Endenergiebedarf
29,80 kWh/(m²·a)
Weitere Energiedaten
Energieträger
Elektro
Heizungsart
Fußbodenheizung, Luft-/Wasser-Wärmepumpe
Details
Objektbeschreibung
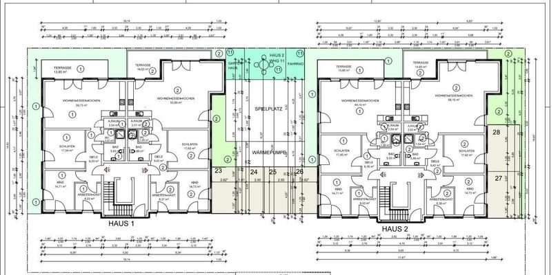
Am Hanauer Platz in Mannheim entstehen zwei Mehrfamilienhäuser mit jeweils 11 Eigentumswohnungen, die Größen von etwa 106 bis 210 m² bieten.
Die modernen Grundrisse gewährleisten in jeder Wohnung ein hohes Maß an Wohnqualität: Egal ob die Wohnungen in den oberen Etagen, die durch ihre großzügige Raumaufteilung...
Weitere Informationen
Besichtigungstermine
Herr Calmes steht ihnen jederzeit telefonisch für Fragen und Besichtigungstermine des Bauprojektes unter Tel: 0173-3979797 zur Verfügung.
Anbieter der Immobilie

bmb GmbH Bauträger u. Projektentwicklung
Auf der Hohl 2, 67269 Grünstadt
Online-ID: 2fcvr5m
Finde Angebote wie dieses
Hier geht es zu unserem Impressum, den Allgemeinen Geschäftsbedingungen, den Hinweisen zum Datenschutz und nutzungsbasierter Online-Werbung.