

Kern-Haus AG Niederlassung Dresden
Frau Nicole Ulbricht
035 ···
Nr. anzeigenPreise & Kosten
Provision für Käufer
provisionsfrei
Lage
Das Wohngebiet zeichnet sich durch seine ideale Lage aus, die Ruhe und Stadtnähe harmonisch vereint. Die umliegende Natur bietet zahlreiche Möglichkeiten zur Erholung und für Aktivitäten im Freien. Alle wichtigen Einrichtungen des täglichen Bedarfs wie Einkaufsmöglichkeiten, Schulen und Kindergärten befinden sich in...
Das Haus
Kategorie
Einfamilienhaus
Baujahr
2025
Energie & Heizung
Warum sehe ich diese Anzeige? – Du siehst diese Anzeige basierend auf Ihrer Navigation auf unserer Website und den Suchkriterien, die du verwendet hast.
Energieausweistyp
Bedarfsausweis
Gebäudetyp
Wohngebäude
Effizienzklasse
A+
Endenergiebedarf
22,43 kWh/(m²·a)
Weitere Energiedaten
Energieträger
Elektro
Heizungsart
Fußbodenheizung, Zentralheizung
Details
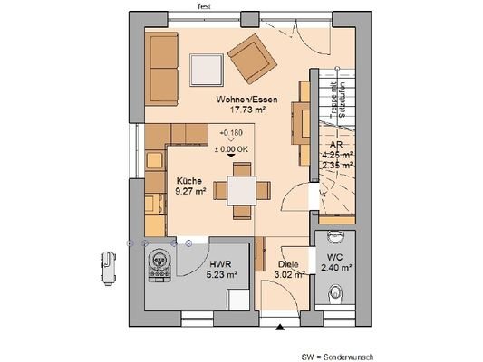
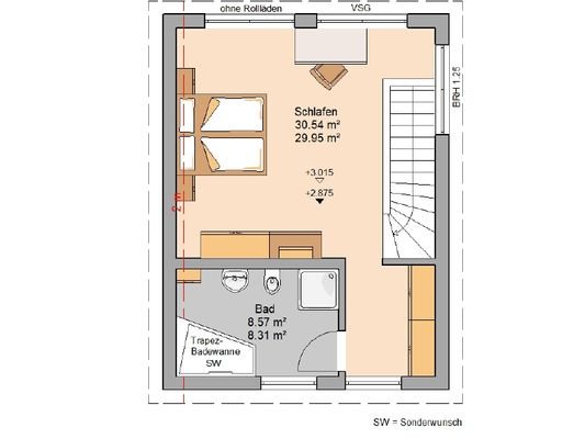
Objektbeschreibung
Das Singlehaus One von Kern-Haus bietet maximalen Lifestyle und verkörpert persönlichen Freiraum. Das Konzept: Reduktion auf das Wesentliche!
In der kompakten Form verschmelzen Küche, Essbereich und Wohnraum zu einer multifunktionalen Einheit. Im Erdgeschoss wird das Raumangebot durch ein Gäste-WC, den...
Ausstattung
2 Zimmer, offene Küche, WC, Bad, Hauswirtschaftsraum; Abstellraum
Das gezeigte Traumhaus im Überblick:
+ Schlüsselfertiges Massivhaus im Sinne der Ausstattungsbeschreibung "Edition 24"
+ Energieeffizienzklasse A+
+ Inklusive Bodenplatte
Beste Markenausstattung in jedem Kern-Haus:
+...
Weitere Informationen
Sonstiges
Kern-Haus
Kern-Haus baut individuelle und massive Architektenhäuser zu einem attraktiven Preis-Leistungs-Verhältnis - und das bereits mit einer Erfahrung seit 1980. Bei Kern-Haus erhalten Sie unter anderem 10 Jahre Gewährleistung auf die wesentlichen Bauleistungen, bis zu 24 Monate Preissicherheit sowie...
Anbieter der Immobilie
Kern-Haus AG Niederlassung Dresden
Am Sandberg 2, 01468 Moritzburg

Online-ID: 2fdn45z
Referenznummer: WDD 9989
Finde Angebote wie dieses
Hier geht es zu unserem Impressum, den Allgemeinen Geschäftsbedingungen, den Hinweisen zum Datenschutz und nutzungsbasierter Online-Werbung.