Flexible Büroflächen mit je 325 m² - einzeln oder kombiniert auf bis zu 650 m²
Zur Vermietung gelangen zwei großzügige Büroetagen mit jeweils ca. 325 m² Nutzfläche. Die Flächen können einzeln oder kombiniert (bis zu 650 m²) angemietet werden und bieten maximale Flexibilität für unterschiedlichste Nutzungskonzepte.
?? BESCHREIBUNG
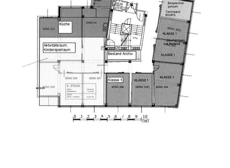
Diese modernen Büroflächen befinden sich im 3. und 4. Stock eines etablierten Bürogebäudes in Wien und überzeugen durch ihre effiziente Aufteilung, helle Räume und vielseitige Nutzungsmöglichkeiten.
Mit jeweils rund 325 m² pro Etage bieten die Einheiten ausreichend Platz für:
* klassische Bürostrukturen * Open-Space Konzepte * Schulungs- oder Seminarflächen * Praxis- oder Dienstleistungsbetriebe
Die Kombination beider Etagen ermöglicht eine Gesamtfläche von ca. 650 m², wodurch sich auch größere Unternehmen optimal entfalten können.
Die vorhandenen Räumlichkeiten - von Einzelbüros über Besprechungsräume bis hin zu Aufenthaltsbereichen - schaffen eine produktive und angenehme Arbeitsumgebung.
??? Ausstattung & Highlights
* Klimatisierte Büroflächen * Lift im Gebäude * Mehrere Büroräume & Besprechungszonen * Aufenthaltsbereiche / Sozialräume (siehe Bilder) * Teeküche / Küchenbereich vorhanden * Sanitäreinheiten pro Etage * Gute natürliche Belichtung * Flexible Raumaufteilung laut Grundriss * ca. 325m2 pro Stockwerk
Die Liegenschaft befindet sich in urbaner Lage in Wien (Favoriten) und bietet eine sehr gute Erreichbarkeit:
* Öffentliche Verkehrsanbindung in unmittelbarer Nähe * Schnelle Anbindung an das Stadtzentrum * Nahversorgung, Gastronomie und Infrastruktur fußläufig erreichbar
-------------------------
? ENERGIEAUSWEIS
* HWB: ca. 58,84 kWh/m²a (Bürogebäude)
-------------------------
Wir weisen darauf hin, dass zwischen dem Vermittler und dem zu vermittelnden Dritten ein familiäres oder wirtschaftliches Naheverhältnis besteht.
Der Vermittler ist als Doppelmakler tätig.
Merkmale
Personenaufzug
Grundrisse
Grundrisse
1 / 2
Realisiere Dein Projekt
Bausubstanz und Energie
Heizwärmebedarf (HWB)
C
Gesamtenergieeffizienz (fGEE)
Der Anbieter hat keine Daten zum Energieausweis hinterlegt.
Mietkosten
Gesamtmiete inkl. Provision, exkl. MwSt.
8.549,57 €
Nettokaltmiete
5.500 €
Betriebskosten
1.182,23 €
Heizkosten
401,12 €
Provision für Mieter
Bitte beachte, das Angebot kann bei Vertragsabschluss die Zahlung einer Provision beinhalten. Weitere Informationen erhältst Du vom Anbieter.