

ScanHaus Marlow
Herr Birger Rohde
016 ···
Nr. anzeigenPreise & Kosten
Provision für Käufer
Bitte beachte, das Angebot beinhaltet bei Vertragsabschluss die Zahlung einer Provision. Weitere Informationen erhältst Du vom Anbieter.
Lage
15806 Zossen liegt etwa 20 Kilometer südlich von Berlin und bietet eine attraktive Mischung aus ländlicher Ruhe und städtischer Nähe. Die Stadt ist gut angebunden durch die B96 sowie die Bahnstrecke, die eine schnelle Verbindung in die Hauptstadt ermöglicht. Zossen ist von Seen, Wäldern und Natur umgeben, was es besonders für...
Das Haus
Kategorie
Bungalow
Geschosse
1 Geschoss
Baujahr
2025
Bezug
2025
Energie & Heizung
Warum sehe ich diese Anzeige? – Du siehst diese Anzeige basierend auf Ihrer Navigation auf unserer Website und den Suchkriterien, die du verwendet hast.
Weitere Energiedaten
Haustyp
Fertighaus, KfW 40
Heizungsart
Fußbodenheizung, Luft-/Wasser-Wärmepumpe
Details
Objektbeschreibung
Anders Wohnen - gemeinsam Leben
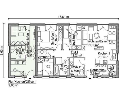
Dieses Mehrgenerationenhaus ist im Baustil eines Bungalow auf einer Ebene inkl. einer Einliegerwohnung von 30,84 m² geplant. Es ergibt sich inklusive der Einliegerwohnung eine Gesamtwohnfläche von 126,40 m². Beide Wohneinheiten haben separate Eingänge für mehr Privatsphäre. Die...
Preisinformation
Der Preis umfasst sowohl das Haus als auch das Grundstück und bietet Ihnen eine vollständige und transparente Kostendarstellung.
Weitere Informationen
Was Scanhaus besonders macht
ScanHaus Marlow ist einer der führenden Anbieter von modernen und umweltfreundlichen Fertighäusern und baut im Jahr 650 bis 700 Häuser. Wir bieten Ihnen mehr als 70 attraktive Fertighaus-Haustypen in modernster Holzrahmenbauweise/Holzständerbauweise: schlüsselfertig, energieeffizient -...
Anbieter der Immobilie
ScanHaus Marlow
An der Schule 86, 12623 Berlin-Mahlsdorf

Online-ID: 2fegz5q
Referenznummer: SR-24-8-24-2
Finde Angebote wie dieses
Hier geht es zu unserem Impressum, den Allgemeinen Geschäftsbedingungen, den Hinweisen zum Datenschutz und nutzungsbasierter Online-Werbung.