

CEF Bau & Immobilien GmbH
Herr Cem Yurtsever
Kontaktiere den Anbieter schriftlich, es ist keine Telefonnummer hinterlegt.
Preise & Kosten
Verhandlungsbasis
Provision für Käufer
3,57% inkl. gesetzlicher MwSt. des Kaufpreises
Lage
Die Wohnung befindet sich in der Stadt Pinneberg (Rellingen) im Bundesland Schleswig-Holstein, Deutschland. Die Lage ist in einem überwiegend von Wohnhäusern geprägten Gebiet, das eine Mischung aus Einfamilienhäusern, Reihenhäusern und Mehrfamilienhäusern bietet. In der Nähe gibt es zahlreiche Parks und Grünflächen, die...
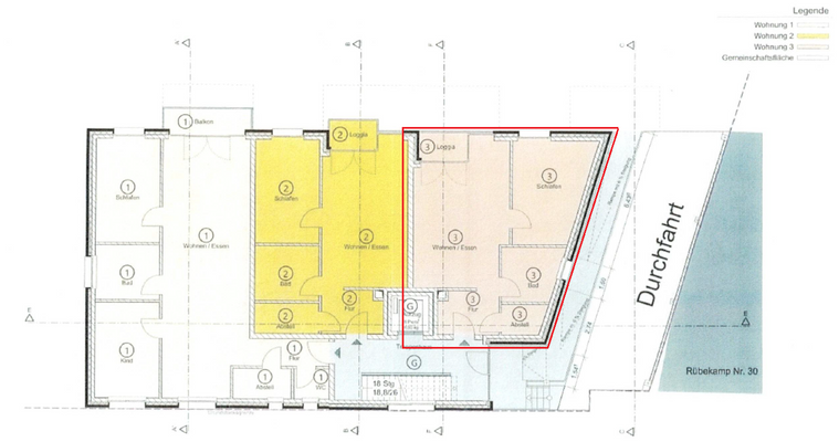
Die Wohnung
Wohnungslage
Erdgeschoss
Derzeitige Nutzung
frei
Wohnanlage
Energie & Heizung
Warum sehe ich diese Anzeige? – Du siehst diese Anzeige basierend auf Ihrer Navigation auf unserer Website und den Suchkriterien, die du verwendet hast.
Energieausweistyp
Bedarfsausweis
Gebäudetyp
Wohngebäude
Baujahr laut Energieausweis
2023
Wesentliche Energieträger
Strom
Gültigkeit
20.06.2023 bis 20.06.2033
Effizienzklasse
A+
Endenergiebedarf
17,00 kWh/(m²·a)
Weitere Energiedaten
Haustyp
KfW 55
Heizungsart
Fußbodenheizung, Luft-/Wasser-Wärmepumpe
Details
Objektbeschreibung
Diese moderne Wohnung ist eine von neun Wohnungen in einem hochwertigen Mehrfamilienhaus und erfüllt den KfW-Effizienzhaus 55-Standard. Die Wohnfläche beträgt 61 m² und ist durch moderne und lichtdurchflutete Grundrisse optimal genutzt.
Die seniorengerechte Wohnungsplanung bietet barrierearme Zugänge und...
Weitere Informationen
Stichworte
Sonstiges/Wohnen: seniorengerechtes Wohnen
Versorgung: Städtische Wasserversorgung, Städtische Stromversorgung
Dokumente
Anbieter der Immobilie
CEF Bau & Immobilien GmbH
Luruper Hauptstraße 250, 22547 Hamburg

Herr Cem Yurtsever
Dein Ansprechpartner
Kontaktiere den Anbieter schriftlich, es ist keine Telefonnummer hinterlegt.
Online-ID: 2ffeg58
Finde Angebote wie dieses
Hier geht es zu unserem Impressum, den Allgemeinen Geschäftsbedingungen, den Hinweisen zum Datenschutz und nutzungsbasierter Online-Werbung.