

Realogis Immobilien Deutschland GmbH
Herr Lars Müller
+49 ···
Nr. anzeigenPreise & Kosten
Provision für Mieter
provisionspflichtig
Bei erfolgreichem Abschluss eines Miet- oder Kaufvertrages erhalten wir vom Mieter oder Käufer eine Provision, außer das Objekt wird ausdrücklich als provisionsfrei angeboten. Bitte beachten Sie hierzu unsere beiliegenden AGB.
Warum sehe ich diese Anzeige? – Du siehst diese Anzeige basierend auf Ihrer Navigation auf unserer Website und den Suchkriterien, die du verwendet hast.
Lage
- A17 ca. 5,6 km entfernt
- B6 ca. 10,8 km entfernt
- Zentrum Dresden ca. 10,8 km entfernt
- Zentrum Pirna ca. 10 km entfernt
- S-Bahn ca. 0,9 km entfernt
- Bushaltestelle ca. 0,5 km entfernt
Die Industriefläche
Bezug
sofort
Details
Objektbeschreibung
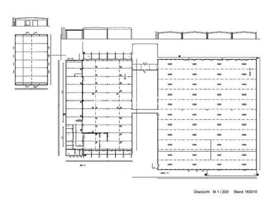
Diese Kaltlagerhalle mit Crossdock in einem Dresdner Gewerbegebiet ist ab sofort vakant. Die Andienung erfolgt über Betonrampen mit insgesamt 12 Toren und 6 Überladeklappen. Das Objekt ist komplett umfahrbar. Das Areal ist nachts und am Wochenende durch elektronisch schließende Tore gesichert.
Ausstattung
- ca. 3.270 m² Lager- und Produktionsfläche + ca. 1.500 m² Freifläche
- Andienung: Betonrampe mit 12 Toren und 6 Überladeklappen (Crossdock)
- Hallenhöhe (UKB): ca. 5,50 m
- Kalthalle
- Medienanschlüsse (Strom, Wasser, Internet) vorhanden
Weitere Informationen
Stichworte
Lagerfläche: 3.270,00 m², Nutzfläche: 3.270,00 m², Gesamtfläche: 4.770,00 m², Bürofläche: 350,00 m², Hallenhöhe: 6,00 m
Dokumente
Anbieter der Immobilie
Realogis Immobilien Deutschland GmbH
Gotenstraße 21, 20097 Hamburg

Online-ID: 2fgee5w
Referenznummer: 1039782
Finde Angebote wie dieses
Hier geht es zu unserem Impressum, den Allgemeinen Geschäftsbedingungen, den Hinweisen zum Datenschutz und nutzungsbasierter Online-Werbung.