

ScanHaus Marlow
Herr Birger Rohde
016 ···
Nr. anzeigenPreise & Kosten
Provision für Käufer
Bitte beachte, das Angebot beinhaltet bei Vertragsabschluss die Zahlung einer Provision. Weitere Informationen erhältst Du vom Anbieter.
Lage
Zossen liegt etwa 40 km südlich von Berlin und bietet eine ruhige Wohnlage mit guter Anbindung.
Mit der Regionalbahn erreichen Sie Berlin in 30-40 Minuten. Die Autobahnen A9 und A10 sind schnell erreichbar, was eine flexible Anbindung an Berlin und darüber hinaus ermöglicht.
In Zossen gibt es mehrere Kitas...
Das Haus
Kategorie
Bungalow
Geschosse
1 Geschoss
Baujahr
2025
Bezug
2025
Energie & Heizung
Warum sehe ich diese Anzeige? – Du siehst diese Anzeige basierend auf Ihrer Navigation auf unserer Website und den Suchkriterien, die du verwendet hast.
Weitere Energiedaten
Haustyp
Fertighaus, KfW 40
Heizungsart
Fußbodenheizung, Luft-/Wasser-Wärmepumpe
Details
Objektbeschreibung
Spektakulär und prämiert!
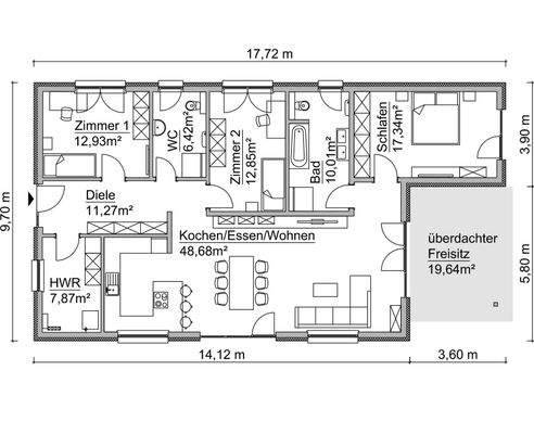
Die außergewöhnliche Deckenhöhe von mehr als 4 Metern sowohl im Wohn-/Essbereich als auch im Schlafzimmer verspricht ein herrschaftliches Wohnambiente – phänomenal! Mit knapp 49 m² Wohnfläche wurde der sehr offen gestaltete Wohn-, Ess- und Kochbereich sehr großzügig gehalten. Das...
Preisinformation
Wichtiger Hinweis zum Preis:
Bitte beachten Sie, dass der angegebene Preis sich ausschließlich auf das Haus bezieht. Das Grundstück wird separat erworben und ist im Hauspreis nicht enthalten. Diese Trennung gewährleistet volle Transparenz und Flexibilität bei der Wahl des passenden Grundstücks.
Weitere Informationen
Was Scanhaus besonders macht
ScanHaus Marlow ist einer der führenden Anbieter von modernen und umweltfreundlichen Fertighäusern und baut im Jahr 650 bis 700 Häuser. Wir bieten Ihnen mehr als 70 attraktive Fertighaus-Haustypen in modernster Holzrahmenbauweise/Holzständerbauweise: schlüsselfertig, energieeffizient -...
Anbieter der Immobilie
ScanHaus Marlow
An der Schule 86, 12623 Berlin-Mahlsdorf

Online-ID: 2fggz5q
Referenznummer: SR-24-8-24-3
Finde Angebote wie dieses
Hier geht es zu unserem Impressum, den Allgemeinen Geschäftsbedingungen, den Hinweisen zum Datenschutz und nutzungsbasierter Online-Werbung.