
Wohnbau Oberriexingen Immobilien GmbH
Frau Brigitte Langfort
070 ···
Nr. anzeigenPreise & Kosten
Kaution
3 Monatskaltmieten
Provision für Mieter
provisionsfrei
Warum sehe ich diese Anzeige? – Du siehst diese Anzeige basierend auf Ihrer Navigation auf unserer Website und den Suchkriterien, die du verwendet hast.
Lage
. Nur 5 Gehminuten von der Stadtbahnstation Neckargröningen/Remseck entfernt
. Gute Lage mit Einbindung in die "Neue Mitte" Remseck
. Fahrzeit mit der Stadtbahn U12 von Stuttgart 25 Minuten nach Remseck
. Nur ein paar Meter von der nächsten Bushaltestelle entfernt (Neckarrems Rathaus)
. Hohe Kundenfrequenz durch...
Büro-/Praxisfläche
Kategorie
medizinisches Gebäude
Baujahr
2020
Bezug
nach Absprache
Energie & Heizung
Warum sehe ich diese Anzeige? – Du siehst diese Anzeige basierend auf Ihrer Navigation auf unserer Website und den Suchkriterien, die du verwendet hast.
Wärme
Energieausweistyp
Bedarfsausweis
Gebäudetyp
Nicht-Wohngebäude
Wesentliche Energieträger
Umweltwärme
Gültigkeit
23.12.2020 bis 22.12.2030
Endenergiebedarf (Wärme)
86,00 kWh/(m²·a)
Details
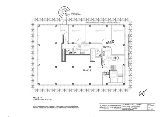
Objektbeschreibung
Entdecken Sie die modernen Praxis- oder Büroräume im Ärztehaus Remseck, die mit neuester Technik ausgestattet sind. Der durchdachte Grundriss wird Sie überzeugen und erfüllt die Bedürfnisse von Mitarbeitern, Patienten oder Klienten gleichermaßen.
Das Gebäude bietet einen barrierefreien Zugang sowie eine moderne...
Ausstattung
Die Praxis/das Büro umfasst folgende Räumlichkeiten:
Empfangs- und Wartebereich:
Dieser Bereich befindet sich im Eingangsbereich und bietet Platz für einen Empfangstresen sowie einen komfortablen Wartebereich für Patienten/Besucher.
Büros:
Drei großzügige, lichtdurchflutete Praxen/Büros, die je nach Bedarf...
Preisinformation
2 Stellplätze, Miete je: 100,00 EUR
Weitere Informationen
Sonstiges
Diese Arztpraxis/Büroräume bietet eine hervorragende Gelegenheit für Mediziner/Unternehmen, die eine etablierte Standort in einer attraktiven Lage suchen. Die Kombination aus moderner Ausstattung, zentraler Lage und einem freundlichen Ambiente macht diese Immobilie zu einem idealen Standort für Ihre medizinische...
Anbieter der Immobilie
Wohnbau Oberriexingen Immobilien GmbH
Im Erkerstal 1-5, 71739 Oberriexingen
Online-ID: 2fhrm5t
Referenznummer: 2415256
Finde Angebote wie dieses
Hier geht es zu unserem Impressum, den Allgemeinen Geschäftsbedingungen, den Hinweisen zum Datenschutz und nutzungsbasierter Online-Werbung.