
Höbel Immobilien GmbH
Frau Jana Höbel
+49 ···
Nr. anzeigenPreise & Kosten
Provision für Käufer
3,57 % Beratungs- und Servicegebühr
Lage
Die Stadthäuser von “Nice” sind Teil des DAMAC Lagoons-Komplexes, einer mediterran inspirierten Gemeinschaft am Ufer eines künstlichen Sees mit kristallklarem Wasser. Sie befinden sich im Golf City-Gebiet von Dubai. Die Architektur der französisch inspirierten Villen von “Nice” fängt den Charme der klassischen französischen...
Das Haus
Kategorie
Reihenmittelhaus
Geschosse
2 Geschosse
Baujahr
2025
Bezug
2025
Details
Objektbeschreibung
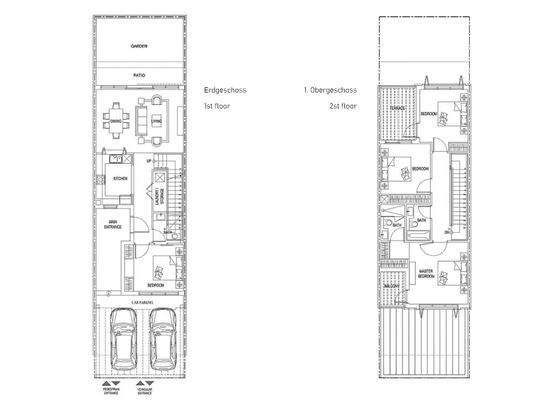
Exklusives 5 Zimmer-Reiheneckhaus mit 4 Schlafzimmern inkl. Einbauschränken, einem Wohn- und Essbereich mit einer kompletten Einbauküche inkl. Elektrogeräte, 3 Bäder, 211 m² Wohnfläche, 155 m² Grundstücksfläche
• 1 Terrasse mit Garten, 1 Balkon und 1 Dachterrasse im 1. Obergeschoss
• zwei Carport-Stellplätze
•...
Weitere Informationen
Sonstiges
- 100 % deutschsprachige Betreuung
- Hier geht es zum Dubai Newsletter: https://www.4h-home-estate.com/newsletter
- Starke Partner: Die Höbel Immobilien GmbH agiert als Makler für die Four Home Estate FZCO.
- Website Four Home Estate: https://www.4h-home-estate.com/
- Bitte berücksichtigen Sie, dass...
Anbieter der Immobilie
Online-ID: 2fjqm5h
Referenznummer: RH Nizza (4BR)
Finde Angebote wie dieses
Hier geht es zu unserem Impressum, den Allgemeinen Geschäftsbedingungen, den Hinweisen zum Datenschutz und nutzungsbasierter Online-Werbung.