

RUHR REAL GmbH
Herr Marius Degenhardt
+49 ···
Nr. anzeigenPreise & Kosten
zzgl. Nebenkosten
Provision für Mieter
3 Nettokaltmieten
Bei Verträgen bis zu fünf Jahren Laufzeit oder unbefristeten Verträgen ist ein Honorar von 3 Nettomonatsmieten vom Mieter zahlbar; bei Laufzeiten bis zu zehn Jahren werden 4 Nettomonatsmieten vom Mieter fällig. Hinzu kommt die jeweil
Warum sehe ich diese Anzeige? – Du siehst diese Anzeige basierend auf Ihrer Navigation auf unserer Website und den Suchkriterien, die du verwendet hast.
Lage
Die Anbindung an die naheliegende Autobahn A 42 ist ausgezeichnet, wodurch sowohl das Rheinland als auch das Ruhrgebiet bestens angebunden sind. Der Gelsenkirchner HBF ist binnen 6 Fahrminuten erreicht. Zudem ist die Anbindung an den internationalen Düsseldorfer Flughafen in circa 30 Fahrminuten erreicht.
Auch der ÖPNV ist...
Die Industriefläche
Kategorie
Lagerhalle
Baujahr
1992
Bezug
sofort
Energie & Heizung
Warum sehe ich diese Anzeige? – Du siehst diese Anzeige basierend auf Ihrer Navigation auf unserer Website und den Suchkriterien, die du verwendet hast.
Weitere Energiedaten
Energieträger
Fernwärme
Details
Objektbeschreibung
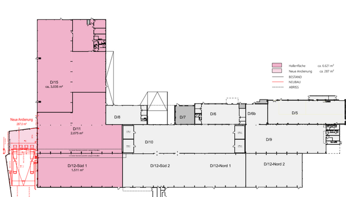
Bei dem Objekt handelt es sich um einen Hallen- und Bürokomplex. Dem Nutzer stehen insgesamt 5 Rampen ur Andienung zur Verfügung. Die Halle ist beheizt. Es gibt ausreichend Büro- und Sozialflächen direkt anliegend.
Derzeit stehen zur Disposition:
Halle D12 ca.3.170 m²
Büro...
Ausstattung
. Andienung: Rampen
. beheizt
. zahlreiche Stellplätze
. Deckenhöhe: 6 m UKB
. Büroflächen optional verfügbar
Preisinformation
Nettokaltmiete: 6,10 EUR
Weitere Informationen
Sonstiges
Es gelten ausschließlich unsere AGB (www.ruhr-real.de/agb). Da der Eigentümer ausschließlich Lager/Logistik, Produktion und Light Industrial als Nutzung wünscht, bitten wir Sie zu berücksichtigen, dass Anfragen zu folgenden Nutzungen nicht bearbeitet werden können: Veranstaltungen/Events...
Anbieter der Immobilie

RUHR REAL GmbH
Holsterhauser Platz 2, 45147 Essen

Online-ID: 2fkfs5m
Referenznummer: 2940/E2
Finde Angebote wie dieses
Hier geht es zu unserem Impressum, den Allgemeinen Geschäftsbedingungen, den Hinweisen zum Datenschutz und nutzungsbasierter Online-Werbung.