
Immobilien Eichmann Verkauf, Vermittlung, Projektentwicklung
Herr/Frau Helmut Eichmann
075 ···
Nr. anzeigenPreise & Kosten
Provision für Käufer
provisionsfrei
Abschreibung/Anlage
als Kapitalanlage geeignet
Lage
Das Mehrfamilienhaus entsteht in unserem beliebten Konstanzer Stadteil Wollmatingen.
Dort sind alle Schulen sowie Kindergärten und Einkaufsmöglichkeiten in unmittelbarer Nähe.Der Baubegin aller 18 Eigentumswohnungen im Herzen von Konstanz-Wollmatingen ist Anfang 2025 geplant..Unmittelbar in der nähe der Kindlebildstrasse...
Die Wohnung
Kategorie
Terrassenwohnung
Wohnungslage
Erdgeschoss
Bezug
2026
Derzeitige Nutzung
frei
Wohnanlage
Energie & Heizung
Warum sehe ich diese Anzeige? – Du siehst diese Anzeige basierend auf Ihrer Navigation auf unserer Website und den Suchkriterien, die du verwendet hast.
Energieausweistyp
Bedarfsausweis
Gebäudetyp
Wohngebäude
Wesentliche Energieträger
Wärmepumpe
Gültigkeit
08.07.2024 bis 09.07.2034
Effizienzklasse
A+
Endenergiebedarf
33,50 kWh/(m²·a)
Weitere Energiedaten
Energieträger
Elektro, Gas
Haustyp
KfW 55
Heizungsart
Fußbodenheizung, Luft-/Wasser-Wärmepumpe
Details
Objektbeschreibung
Objektbeschreibung
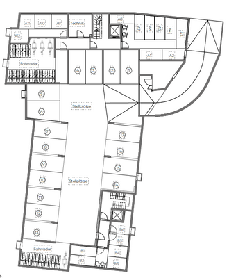
Das gesamte Bauvorhaben und Neubauprojekt KW 55 Effizenzhaus A+besteht aus einem Mehrfamilienhaus A ,das an der Kindlebildstrasse 13 liegt mit 12 Wohneinheiten, und einem Hinterhaus B mit 6 Wohneinheiten.Sowohl bei Haus A wie bei Haus B werden die Balkone alle nach Süd-Westen ausgerichtet sein.Die...
Weitere Informationen
Besichtigungstermine
Alle Besichtigungstermine finden nach Vereinbarung statt. Wir sind auch an Wochenenden und Feiertagen für sie da.
Stichworte
TV: Kabelanschluss, Sat-Anschluss, Antennenanschluss
Sonstiges/Wohnen: seniorengerechtes Wohnen
Versorgung: Städtische Wasserversorgung, Städtische...
Anbieter der Immobilie
Immobilien Eichmann Verkauf, Vermittlung, Projektentwicklung
Jacob-Burckhardt-Str. 40, 78464 Konstanz
Online-ID: 2fldg56
Referenznummer: A1
Finde Angebote wie dieses
Hier geht es zu unserem Impressum, den Allgemeinen Geschäftsbedingungen, den Hinweisen zum Datenschutz und nutzungsbasierter Online-Werbung.