

Janine Graap Immobilien
Frau Janine Graap
043 ···
Nr. anzeigenPreise & Kosten
Provision für Käufer
provisionsfrei
Lage
Heikendorf und insbesondere Altheikendorf ist einer der beliebtesten Wohnorte im Kieler Umland. Entstanden im 12. Jahrhundert und heute mit etwa 8300 Einwohnern eine gewachsene Gemeinde mit allen erdenklichen Versorgungseinrichtungen, Kirchen, sozialen Einrichtungen, Kindergärten, allen Schularten, Gewerbetreibenden...
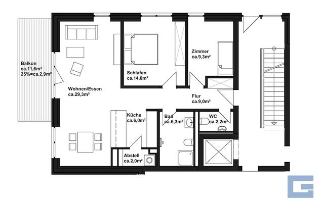
Die Wohnung
Wohnungslage
Erdgeschoss
Bezug
Frühjahr 2026
Wohnanlage
Energie & Heizung
Warum sehe ich diese Anzeige? – Du siehst diese Anzeige basierend auf Ihrer Navigation auf unserer Website und den Suchkriterien, die du verwendet hast.
Weitere Energiedaten
Heizungsart
Fußbodenheizung, Luft-/Wasser-Wärmepumpe
Details
Objektbeschreibung
Willkommen in Ihrem neuen Zuhause, wo zeitgemäßes Design auf eine ruhige und besondere Lage trifft! Diese exklusive Neubauimmobilie besteht aus 66 hochwertig ausgestatteten Wohnungen, aufgeteilt in acht architektonisch ansprechende Häuser. Die Lage dieses Wohnprojekts verspricht nicht nur Ruhe, sondern bietet auch eine...
Ausstattung
- Massive Bauweise
- Luft-Wasser-Wärmepumpen (Stromgewinnung durch Photovoltaikanlagen auf den Gründächern)
- Glasfaser
- Video-Sprechstellen an der Wohnungstür
- Badezimmer mit Dusche, Waschbecken, WC und Handtuchheizkörper
- 2 x Schlafzimmer
- Großes Wohnzimmer mit hochwertiger...
Preisinformation
1 Tiefgaragenstellplatz
Weitere Informationen
Sonstiges
Nachhaltiges Bauen
Die Beheizung erfolgt ökologisch durch Luft-Wasser-Wärmepumpen, die Stromgewinnung durch Photovoltaikanlagen auf den Gründächern. Die Zusammenarbeit mit den Gemeindewerken garantiert eine sichere und kostengünstige Wärmeversorgung. Durch die dezentrale Warmwassererzeugung ergibt sich...
Anbieter der Immobilie

Online-ID: 2flle5a
Referenznummer: 24226006_30-04-a
Finde Angebote wie dieses
Hier geht es zu unserem Impressum, den Allgemeinen Geschäftsbedingungen, den Hinweisen zum Datenschutz und nutzungsbasierter Online-Werbung.