

FBR Maklerkontor
Frau Melanie Meißner
038 ···
Nr. anzeigenPreise & Kosten
Provision für Käufer
3,57 % inkl. gesetzl. MwSt. vom not. Kaufpreis
Abschreibung/Anlage
Denkmalschutz-Afa
Lage
Das Wohn- und Geschäftshaus befindet sich inmitten der Innenstadt, in der Schweriner Altstadt. In wenigen Gehminuten erreicht man vom Objekt das Schweriner Schloss, umgeben vom Schweriner See oder verschiedene Einkaufmöglichkeiten in der Innenstadt, u. a. das Schlossparkcenter. Auch der Nahverkehr ist fußläufig zu erreichen.
Das Haus
Baujahr
1929
Derzeitige Nutzung
vermietet
Energie & Heizung
Warum sehe ich diese Anzeige? – Du siehst diese Anzeige basierend auf Ihrer Navigation auf unserer Website und den Suchkriterien, die du verwendet hast.
Energieausweistyp
Bedarfsausweis
Gebäudetyp
Wohngebäude
Baujahr laut Energieausweis
1929
Wesentliche Energieträger
GAS
Gültigkeit
bis 04.04.2024
Endenergiebedarf
181,00 kWh/(m²·a)
Weitere Energiedaten
Haustyp
Massivhaus
Energieträger
Gas
Heizungsart
Zentralheizung
Details
Objektbeschreibung
Im Herzen der Landeshauptstadt Schwerin, nur einen Steinwurf vom malerischen Schweriner Schloss entfernt, befindet sich dieses beeindruckende denkmalgeschützte Wohn- und Geschäftshaus. Erbaut im Jahr 1929 nach den Plänen des Architekten Hans Stoffers, verbindet das Gebäude im Bauhaus-Stil historische Eleganz mit modernem...
Ausstattung
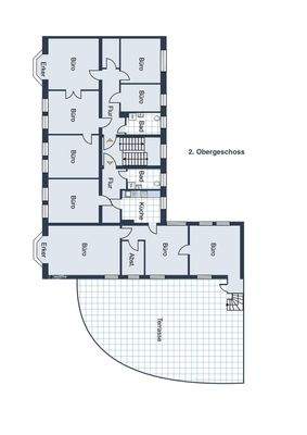
Die Immobilie gliedert sich wie folgt:
Erdgeschoss (insgesamt ca. 309,04 m²):
EG links - Praxisräume - ca. 83,87 m²
EG rechts - Büroräume - ca. 71,94 m²
EG Mitte - Einzelhandel - Laden- ca. 153,23 m²
1. Obergeschoss (insgesamt ca. 321,91 m²)
1. OG links - Büroräume - ca. 118,64 m²
1. OG...
Preisinformation
Soll-Mieteinnahmen pro Jahr: 105.340,80 EUR
Ist-Mieteinnahmen pro Jahr: 105.340,80 EUR
Weitere Informationen
Sonstiges
Die Übernahme / Übergabe erfolgt vermietet nach Kauf und Vereinbarung.
Besichtigungen erfolgen ausschließlich nach terminlicher Absprache mit unserem Hause.
Die Angaben zum Energieverbrauch beruhen auf Grundlage des Energieausweises.
Das Objekt wird frei von Lasten in Abt. III des Grundbuches...
Dokumente
Anbieter der Immobilie

Online-ID: 2fmfk55
Referenznummer: MM10030-23
Finde Angebote wie dieses
Hier geht es zu unserem Impressum, den Allgemeinen Geschäftsbedingungen, den Hinweisen zum Datenschutz und nutzungsbasierter Online-Werbung.