
Adler Group
Frau S. Maarouf
+49 ···
Nr. anzeigenPreise & Kosten
Kaution
nach Vereinbarung
Provision für Mieter
provisionsfrei
Warum sehe ich diese Anzeige? – Du siehst diese Anzeige basierend auf Ihrer Navigation auf unserer Website und den Suchkriterien, die du verwendet hast.
Lage
Das Bürogebäude in der Peter-Müller Straße 18 profitiert von seiner verkehrsgünstigen Lage in direkter Nähe zur Autobahn A44, die eine schnelle Anbindung an das regionale und überregionale Straßennetz bietet. Zudem ist der Flughafen Düsseldorf nur eine kurze Fahrt entfernt, was für Geschäftsreisende und internationale...
Büro-/Praxisfläche
Kategorie
Bürogebäude
Baujahr
2007
Bezug
nach Vereinbarung
Energie & Heizung
Warum sehe ich diese Anzeige? – Du siehst diese Anzeige basierend auf Ihrer Navigation auf unserer Website und den Suchkriterien, die du verwendet hast.
Wärme
Strom
Energieausweistyp
Bedarfsausweis
Gebäudetyp
Nicht-Wohngebäude
Endenergiebedarf (Wärme)
110,50 kWh/(m²·a)
Endenergiebedarf (Strom)
23,50 kWh/(m²·a)
Weitere Energiedaten
Energieträger
Fernwärme, Gas
Details
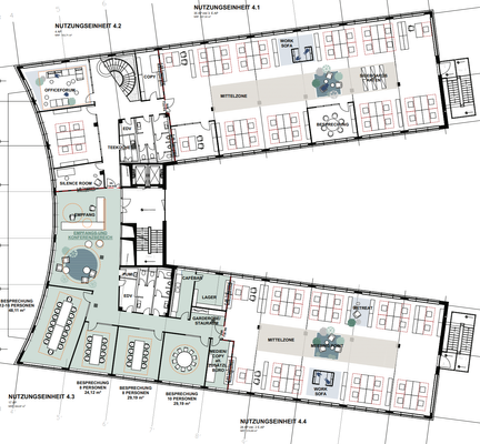
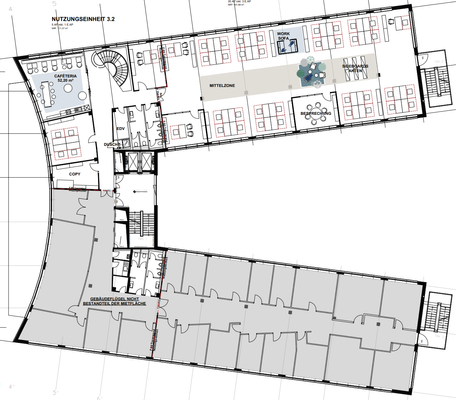
Objektbeschreibung
Willkommen im Objekt Le Ciel in der Peter-Müller-Straße 18 - Ihre neue Businessadresse in der Airport City - provisionsfrei.
Dieses Objekt direkt am Flughafen und in unmittelbarer Nähe zur Messe bietet Ihnen ein repräsentatives Erscheinungsbild in einem
hochmodernen Büro- und Geschäftsgebäude.
Davon stehen derzeit...
Ausstattung
- hochwertig möblierte Büroflächen (Möblierung kann
gemietet oder gegen Abstand übernommen werden)
- helle sowie freundliche Räume durch große Fensterfronten
- hochwertige Teeküchen und Sanitäreinheiten
- eine Dusche in der 3. Etage
- abgehängte Decken
- elektrische Außenjalousien
- integrierte...
Weitere Informationen
Sonstiges
Wir suchen einen geeigneten Untermieter für eine Laufzeit bis max. November 2027.
Zur Vereinbarung eines Besichtigungstermins lassen Sie uns bitte eine Anfrage über das Kontaktformular zukommen. Wir werden
uns schnellstmöglich mit Ihnen in Verbindung setzen.
Folgende Unterlagen sind bei...
Dokumente
Anbieter der Immobilie

Adler Group
Online-ID: 2fn3q59
Referenznummer: Untermieter3./4.OG
Finde Angebote wie dieses
Hier geht es zu unserem Impressum, den Allgemeinen Geschäftsbedingungen, den Hinweisen zum Datenschutz und nutzungsbasierter Online-Werbung.