

Einfamilienhaus zum Kauf1390000 €1.114 €/m²30 Zimmer • 915 m² • 1.650 m² Grundstück
1390000 €
1.114 €/m²
30 Zimmer • 915 m² • 1.650 m² Grundstück
Historische Jugendstilvilla nur wenige Schritte vom Gardasee entfernt
Merkmale
- 1.650 m² Grundstück
- Keller
- Bidet
- Balkon
- Terrasse
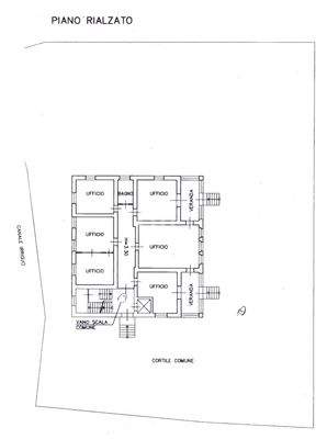
Grundrisse
Verschaffe dir einen genauen Überblick über die Raumaufteilung.

Realisiere Dein Projekt
Bausubstanz und Energie
Möchtest du Details zum Energieverbrauch?

- Baujahr1901
- Zustand der Immobilierenovierungsbedürftig / sanierungsbedürftig
- HeizungsartEtagenheizung
- EnergieträgerGas
Preisdetails
Kaufpreis
1390000 €
1.113,65 €/m²
Provision für Käufer
ja maklerprovision im Preis nicht inbegriffen inkl. MwSt.
Lage

Via Bellini 15, Roè Volciano (25077)
Weitere Informationen
Weitere Services
Lust auf eine Besichtigung?
Eine Frage zur Immobilie?
Über den Anbieter
Via Meucci 77, 25080 PADENGHE SUL GARDA
Partnerschaft
Firma Garda Haus SalòDein Kontakt
Online-ID: 24CF1KW41C47
Referenznummer: LV-116

Garda Haus Srl
Wie zufrieden bist du mit dieser Seite (nicht mit der Immobilie selbst)?

