
MIA Real Estate GmbH
Herr Siegfried Seidl
+43 ···
Nr. anzeigenPreise & Kosten
Provision für Käufer
3% des Kaufpreises zzgl. 20% USt.
Lage
Hochburg-Ach ist eine Gemeinde in Oberösterreich im Bezirk Braunau am Inn im Innviertel mit 3405 Einwohnern (Stand 1. Jänner 2024). Der zuständige Gerichtsbezirk ist der Gerichtsbezirk Mattighofen, bis 2004 gehörte die Gemeinde zum Gerichtsbezirk Wildshut.
Hochburg-Ach liegt auf 462 Meter Höhe im Innviertel direkt...
Die Wohnung
Kategorie
Penthouse
Bezug
laut Vereinbarung
Wohnanlage
Energie & Heizung
Warum sehe ich diese Anzeige? – Du siehst diese Anzeige basierend auf Ihrer Navigation auf unserer Website und den Suchkriterien, die du verwendet hast.
Weitere Energiedaten
Energieträger
Gas
Heizungsart
Zentralheizung
Details
Objektbeschreibung
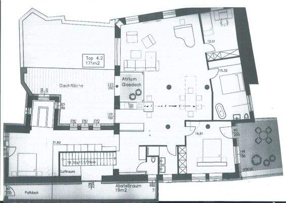
Diese atemberaubende Penthouse-Wohnung bietet Ihnen nicht nur eine großzügige Fläche von 196m², sondern auch eine atemberaubende Aussicht auf die Altstadt Burghausen und die längste Burg Europas. Das alte Gebäude hat eine lange Geschichte und ist als Zollturm bekannt! Die Wohnung selbst besitzt 3 Terrassen mit atemberaubenden...
Preisinformation
1 Stellplatz
Weitere Informationen
Stichworte
Stellplatz vorhanden, Süd-West-Balkon/Terrasse, Nutzfläche: 300,00 m², Gesamtfläche: 300,00 m², Anzahl der Badezimmer: 1, Anzahl der separaten WCs: 2, Anzahl Terrassen: 1, Balkon-Terrassen-Fläche: 104,00 m², Bundesland: Bayern, 2 Etagen
Anbieter der Immobilie
MIA Real Estate GmbH
Bachsiedlung 11, 5166 Perwang am Grabensee
Online-ID: 2fqfq5m
Referenznummer: OBGC20240816111900041a5408be924
Finde Angebote wie dieses
Hier geht es zu unserem Impressum, den Allgemeinen Geschäftsbedingungen, den Hinweisen zum Datenschutz und nutzungsbasierter Online-Werbung.