

BUERO.IMMOBILIEN Leipzig GmbH & Co. KG
Frau Kathrin Oldenburg
034 ···
Nr. anzeigenPreise & Kosten
Kaution
3,0 Bruttomonatsmieten
Provision für Mieter
provisionsfrei
Warum sehe ich diese Anzeige? – Du siehst diese Anzeige basierend auf Ihrer Navigation auf unserer Website und den Suchkriterien, die du verwendet hast.
Lage
In den 1880er Jahren war Plagwitz eine in vielen Ländern der Welt bekannte Adresse als Herkunftsort damals moderner und zuverlässiger Industrieerzeugnisse. Heute gilt diese Region als eines der innovativsten und interessantesten Stadtgebiete Leipzigs. Die Revitalisierung und Schaffung urbaner Strukturen, die zentrale Lage im...
Büro-/Praxisfläche
Kategorie
Bürofläche
Details
Objektbeschreibung
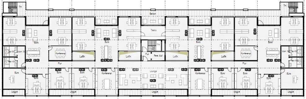
In dem modernen Neubau entstehen repräsentative Büros mit einem angrenzenden Parkhaus. Der neue Bürokomplex hat eine Gesamtfläche von ca. 4725,76m², welche sich vom Erdgeschoss bis zum 4. Obergeschoss erstrecken und über mehrere Aufgänge erschlossen werden. Die Flächen können individuell nach dem Raumprofil des Mieters...
Weitere Informationen
Sonstiges
Der Mietpreis richtet sich nach Ausstattung, Mietvertragslaufzeit und Lage im Objekt und liegt zwischen 16,00 und 18,00 EUR/m² zzgl. Nebenkosten. Gern unterbreiten wir Ihnen Ihr persönliches Mietangebot.
Büroanmietung leicht gemacht?
Bitte sprechen Sie uns an, gern stellen wir Ihnen eine Auswahl...
Anbieter der Immobilie
BUERO.IMMOBILIEN Leipzig GmbH & Co. KG
Markt 9, 04109 Leipzig

Online-ID: 2fqu75y
Referenznummer: 188/G1/E2/Eh4
Finde Angebote wie dieses
Hier geht es zu unserem Impressum, den Allgemeinen Geschäftsbedingungen, den Hinweisen zum Datenschutz und nutzungsbasierter Online-Werbung.