

BUERO.IMMOBILIEN Leipzig GmbH & Co. KG
Frau Kathrin Oldenburg
034 ···
Nr. anzeigenPreise & Kosten
Provision für Mieter
provisionsfrei
Warum sehe ich diese Anzeige? – Du siehst diese Anzeige basierend auf Ihrer Navigation auf unserer Website und den Suchkriterien, die du verwendet hast.
Lage
Der Standort ist sehr verkehrsgünstig an der vierspurig ausgebauten B 2 zur nahen Autobahn A 14 (ca. 3 km), zum Flughafen (13 Minuten), zum BMW-Werk (10 Minuten), zum Porsche-Werk (14 Minuten) und zum Messegelände (5 Minuten) und nur rd.10 Autominuten von der Leipziger Innenstadt entfernt gelegen. Innerörtliche...
Büro-/Praxisfläche
Kategorie
Bürofläche
Details
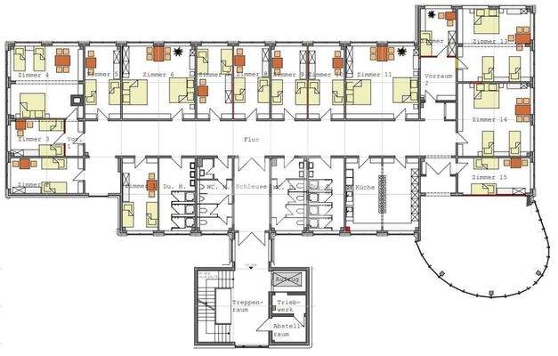
Objektbeschreibung
Der Bürokomplex umfasst mit 7 Stockwerken ca. 4.100,00 m² und verfügt über eine grosszügige Raumaufteilung. Tagungsräume auf jeder Etage sowie helle Fesnter sorgen für eine ideale Arbeitsatmosphäre.
Im Objekt stehen aktuell folgende Flächen zur Anmietung zur Verfügung:
- EG mit 677,416 m²
- 1. OG mit 673,667...
Weitere Informationen
Sonstiges
Der Mietpreis richtet sich nach Ausstattung, Lage im Gebäude und Vertragslaufzeit und liegt zwischen 12,00 - 16,00 EUR/ m².
Flächenanmietung leicht gemacht?
Bitte sprechen Sie uns an, gern stellen wir Ihnen eine Auswahl geeigneter Büroflächenangebote zusammen. Für Fragen, ein persönliches...
Anbieter der Immobilie
BUERO.IMMOBILIEN Leipzig GmbH & Co. KG
Markt 9, 04109 Leipzig

Online-ID: 2frnm5y
Referenznummer: 1098/E2/Eh1
Finde Angebote wie dieses
Hier geht es zu unserem Impressum, den Allgemeinen Geschäftsbedingungen, den Hinweisen zum Datenschutz und nutzungsbasierter Online-Werbung.