

Kreissparkasse Waiblingen
Frau Annkatrin Kirsten
071 ···
Nr. anzeigenPreise & Kosten
Provision für Käufer
provisionsfrei
Lage
Die Stadt Weinstadt, mit rund 27.000 Einwohnern, liegt ca. 15 km östlich von Stuttgart im Rems-Murr-Kreis und besteht aus den Teilorten Endersbach, Beutelsbach, Großheppach, Schnait und Strümpfelbach. Sie grenzt an den Landkreis Esslingen an. Die Kreisstadt Waiblingen ist die direkte Nachbarstadt.
Weinstadt hat drei...
Büro-/Praxisfläche
Baujahr
2025
Energie & Heizung
Warum sehe ich diese Anzeige? – Du siehst diese Anzeige basierend auf Ihrer Navigation auf unserer Website und den Suchkriterien, die du verwendet hast.
Energieausweis: für diesen Gebäudetyp nicht notwendig
Details
Objektbeschreibung
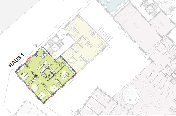
Im Herzen von Weinstadt-Beutelsbach errichtet die PHOENIX Living GmbH 29 Wohneinheiten, eine Stadtbücherei und drei weitere Gewerbeeinheiten. Hier entsteht ein vielfältiger Wohnungsmix, in wettbewerbsprämierter Architektur in einem zukunftsweisenden Kultur- und Wohn-Ensemble unter der Bezeichnung K:libri.
Ausstattung
- Gewerbeflächen im Erdgeschoss
- Übergabe im veredelten Rohbau
- Möglichkeit des Vollausbaus für 4.200€ netto pro m²
- KfW 55 Standard
- leistungsfähiger Glasfaseranschluß (FTTH)
- Holz-Pellets-Heizung
- E-Lademöglichkeit
Weitere Informationen
Stichworte
Gesamtfläche: 122,00 m², Bundesland: Baden-Württemberg
Anbieter der Immobilie

Kreissparkasse Waiblingen
Alter Postplatz 8, 71332 Waiblingen

Online-ID: 2frwk5b
Referenznummer: 4-014223-GE2
Finde Angebote wie dieses
Hier geht es zu unserem Impressum, den Allgemeinen Geschäftsbedingungen, den Hinweisen zum Datenschutz und nutzungsbasierter Online-Werbung.