

Laden zum Kauf620 m² Verkaufsfläche
620 m² Verkaufsfläche
Großzügige Geschäftsfläche in guter Lage
Merkmale
- Erdgeschoss
- Personenaufzug
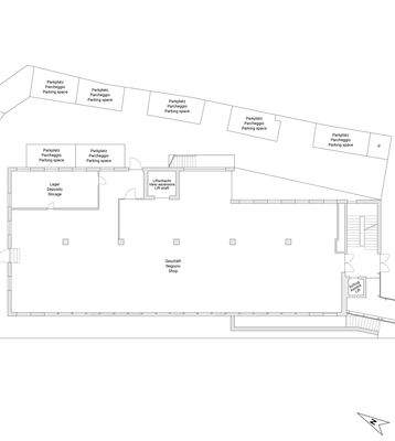
Grundrisse
Grundrisse
1 / 4
Realisiere Dein Projekt
Bausubstanz und Energie
Der Anbieter hat keine Informationen zum Energieverbrauch bereit gestellt.
Preisdetails
Provision für Käufer
Bitte beachte, das Angebot kann bei Vertragsabschluss die Zahlung einer Provision beinhalten. Weitere Informationen erhältst Du vom Anbieter.
Lage

Brennerstraße 32, Brixen (39042)
Weitere Informationen
Weitere Services
Lust auf eine Besichtigung?
Eine Frage zur Immobilie?
Über den Anbieter
CastellanumMaklerbüro
Trattengasse 7, 37042 Brixen (BZ)
6 Jahre Partnerschaft
Firma Castellanum Brixen - BressanoneDein Kontakt
Online-ID: 2frxh5u
Referenznummer: BX13615

Castellanum
Wie zufrieden bist du mit dieser Seite (nicht mit der Immobilie selbst)?

