

RUHR REAL GmbH
Herr Marius Degenhardt
+49 ···
Nr. anzeigenPreise & Kosten
zzgl. Nebenkosten
Provision für Mieter
3 - 5 Nettomonatsmieten
Bei Verträgen bis zu fünf Jahren Laufzeit ist ein Honorar von 3 Nettomonatsmieten zahlbar; bei Laufzeiten bis zu zehn Jahren werden 4 Nettomonatsmieten fällig. Hinzu kommt die jeweils gültige Umsatzsteuer.
Warum sehe ich diese Anzeige? – Du siehst diese Anzeige basierend auf Ihrer Navigation auf unserer Website und den Suchkriterien, die du verwendet hast.
Lage
Die in Gelsenkirchen-Bismarck gelegene Liegenschaft verfügt über eine direkte Anbindung an die Autobahn A42, welche ebenfalls einen guten Anschluss zu den Autobahnen A40, A43, A2 und A52 bietet. Der Gelsenkirchener Hauptbahnhof ist in nur wenigen Fahrminuten zu erreichen, eine gute Anbindung an den ÖPNV ist somit...
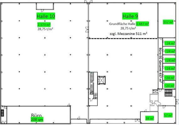
Die Industriefläche
Kategorie
Lagerhalle
Baujahr
1997
Bezug
ab sofort
Details
Objektbeschreibung
Bei der angebotenen Liegenschaft handelt es sich um einen modernen Hallenkomplex. Die Flächen befinden sich in einem sehr gepflegten Zustand und sind sowohl ebenerdig als auch über Rampen erschlossen. Darüber hinaus sind die vakanten Räumlichkeiten beheizt und verfügen durch Tageslichtfensterbänder über einen hohen Einfall...
Ausstattung
. Hallenhöhe: ca. 6,0 m UKB
. Rampenandienung
. viel Tageslicht
. beheizt
. Büro- und Sozialflächen stehen zur Verfügung
Preisinformation
Nettokaltmiete: 6,10 EUR
Weitere Informationen
Sonstiges
Es gelten ausschließlich unsere AGB (www.ruhr-real.de/agb). Da der Eigentümer ausschließlich Lager/Logistik, Produktion und Light Industrial als Nutzung wünscht, bitten wir Sie zu berücksichtigen, dass Anfragen zu folgenden Nutzungen nicht bearbeitet werden können: Veranstaltungen/Events...
Anbieter der Immobilie

RUHR REAL GmbH
Holsterhauser Platz 2, 45147 Essen

Online-ID: 2fste5y
Referenznummer: 1152/E12
Finde Angebote wie dieses
Hier geht es zu unserem Impressum, den Allgemeinen Geschäftsbedingungen, den Hinweisen zum Datenschutz und nutzungsbasierter Online-Werbung.