

Terra-Immobilien OHG
Herr Dirk Nepolsky
+49 ···
Nr. anzeigenPreise & Kosten
Kaution
3-6 Bruttomieten
Provision für Mieter
provisionsfrei
Warum sehe ich diese Anzeige? – Du siehst diese Anzeige basierend auf Ihrer Navigation auf unserer Website und den Suchkriterien, die du verwendet hast.
Lage
Hier werden Sie gesehen!
+ beste Verkehrsanbindungen an die Autobahnen A3, A60, A66
+ in ca. 12 Minuten zum Rhein-Main-Flughafen
+ direkt an der B519
+ in einem Gewerbegebiet von Flörsheim
+ genau zwischen Frankfurt am Main, Mainz und Wiesbaden
+ inmitten der Metropolregion Rhein-Main-Gebiet
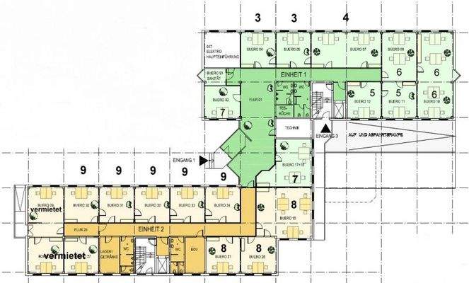
Büro-/Praxisfläche
Kategorie
medizinisches Gebäude
Baujahr
1991
Bezug
nach Absprache
Derzeitige Nutzung
frei
Energie & Heizung
Warum sehe ich diese Anzeige? – Du siehst diese Anzeige basierend auf Ihrer Navigation auf unserer Website und den Suchkriterien, die du verwendet hast.
Wärme
Strom
Energieausweistyp
Bedarfsausweis
Gebäudetyp
Nicht-Wohngebäude
Baujahr laut Energieausweis
1991
Wesentliche Energieträger
Gas
Gültigkeit
18.09.2017 bis 18.09.2027
Endenergiebedarf (Wärme)
106,00 kWh/(m²·a)
Endenergiebedarf (Strom)
32,00 kWh/(m²·a)
Weitere Energiedaten
Energieträger
Gas
Heizungsart
Zentralheizung
Details
Objektbeschreibung
Objekt Homepage https://floersheim.terra.immo
Kurzfristig einziehen! 2 moderne Büros!
Das im Jahr 1991 erbaute Gebäude ist optisch und technisch auf dem aktuellen Stand.
Es befindet sich in direkter Blicklage von der Bundesstraße 519, neben einer Vielzahl namhafter Unternehmen, direkt im Gewerbegebiet...
Ausstattung
+ großer Empfangsbereich
+ moderne Büros
+ Einbauleuchten
+ Multimedia-Anschluss
+ Sonnenschutz
+ Personenaufzug
+ klimatisierte Räume
+ Einbruchmeldeanlage
+ Brandmeldeanlage
+ Tiefgaragenplatz optional (monatlich 45 EUR)
+ PKW-Stellplatz optional (monatlich 22 EUR)
+ flexible...
Weitere Informationen
Bearbeiter
Dirk Nepolsky
Sonstiges
HAFTUNG:
Alle von uns angegebenen Objektinformationen oder Unterlagen zum Objekt beruhen auf Auskünften und Angaben des Vermieters.
Für die Richtigkeit oder Vollständigkeit können wir daher keine Haftung übernehmen.
Stichworte
Serviceleistungen...
Anbieter der Immobilie
Terra-Immobilien OHG
Höchster Markt 3, 65929 Frankfurt am Main

Online-ID: 2fv3p5w
Referenznummer: 901124-0-6
Finde Angebote wie dieses
Hier geht es zu unserem Impressum, den Allgemeinen Geschäftsbedingungen, den Hinweisen zum Datenschutz und nutzungsbasierter Online-Werbung.