

ScanHaus Marlow
Herr Birger Rohde
016 ···
Nr. anzeigenPreise & Kosten
Provision für Käufer
provisionsfrei
Lage
Zossen liegt etwa 40 km südlich von Berlin und bietet eine ruhige Wohnlage mit guter Anbindung.
Mit der Regionalbahn erreichen Sie Berlin in 30-40 Minuten. Die Autobahnen A9 und A10 sind schnell erreichbar, was eine flexible Anbindung an Berlin und darüber hinaus ermöglicht.
In Zossen gibt es mehrere Kitas...
Das Haus
Geschosse
1 Geschoss
Baujahr
2025
Bezug
2025
Energie & Heizung
Warum sehe ich diese Anzeige? – Du siehst diese Anzeige basierend auf Ihrer Navigation auf unserer Website und den Suchkriterien, die du verwendet hast.
Weitere Energiedaten
Haustyp
Fertighaus, KfW 40
Heizungsart
Fußbodenheizung, Luft-/Wasser-Wärmepumpe
Details
Objektbeschreibung
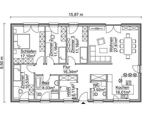
Der SH 128 B Bungalow ist mit seinen knapp 128 m² und fünf Zimmern ideal für Familien mit mehr als einem Kind. Der offene Flur verbindet alle Räume miteinander und führt Sie direkt in den großzügigen Wohn-, Ess- und Kochbereich, der ca. 44 m² Wohn- und Nutzfläche bietet. Hier sind verschiedene Fensterlösungen zur Terrasse...
Weitere Informationen
Was Scanhaus besonders macht
ScanHaus Marlow ist einer der führenden Anbieter von modernen und umweltfreundlichen Fertighäusern und baut im Jahr 650 bis 700 Häuser. Wir bieten Ihnen mehr als 100 attraktive Fertighaus-Haustypen in modernster Holzrahmenbauweise/Holzständerbauweise: schlüsselfertig, energieeffizient -...
Anbieter der Immobilie
ScanHaus Marlow
An der Schule 86, 12623 Berlin-Mahlsdorf

Online-ID: 2fx8x5q
Referenznummer: mr-23-8-24-5 SH128B
Finde Angebote wie dieses
Hier geht es zu unserem Impressum, den Allgemeinen Geschäftsbedingungen, den Hinweisen zum Datenschutz und nutzungsbasierter Online-Werbung.