Version: 8.24.1Navigation überspringen
14,80 €
1.589 m² Bürofläche  •  teilbar ab 386,7 m²
Immowelt logo

Bürofläche zur Miete - Erstbezug
14,80 €
/m²
1.589 m² Bürofläche  •  teilbar ab 386,7 m²

MODERN & ENERGIEEFFIZIENT - AUSBAU NACH MIETERWUNSCH - S-BAHN - PROVISIONSFREI!

+++ MODERNE & ENERGIEEFFIZIENTE BÜROFLÄCHEN MIT TERRASSE DIREKT AN DER S-BAHN HALTESTELLE +++

Die zur Vermietung stehenden Büroflächen werden hochwertig und modern ausgebaut. Der Ausbau der Flächen erfolgt mit Blick auf Funktionalität und Eleganz, um eine professionelle Arbeitsumgebung zu schaffen. Zudem gibt es eine pro Etage zwei Terrassen, welche exklusiv von den jeweiligen Mietern genutzt werden können.

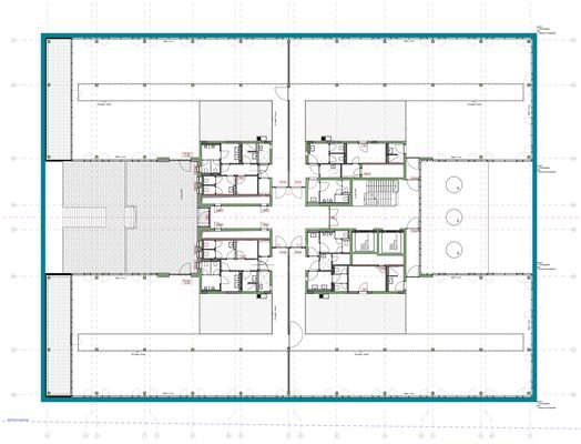
Die neu ausgebauten Büroräumlichkeiten verfügen insgesamt über ca. 3.971,00 qm, verteilt auf das 3, 4. & 5. Obergeschoss.
Eine Etage lässt sich bei Bedarf in vier abgeschlossene Einheiten - ab ca. 386,71 qm - unterteilen. Selbstverständlich können die Einheiten auch zusammenhängend angemietet werden und bieten dadurch höchstmögliche Flexibilität für jeden Flächenbedarf.

Folgende exemplarische Aufteilungen sind problemlos umsetzbar:

2,5 Etagen (1/2 3. OG + 4. OG + 5. OG): ca. 3.971,00 qm
Eine Etage (bspw. 4. OG): ca. 1.588,69 qm
Halbe Etage: ca. 794,87 qm
Viertel Etage: ca. 386,71 qm

Neben dem hochwertigen Standardausbau können die individuellen Vorstellungen des Mieters vollumfänglich berücksichtigt und Sonderwünsche wie beispielsweise einen exklusiven Bodenbelag, Glas-Bürotrennwände und/oder weitere Akustikmaßnahmen an Wände/Decken umgesetzt werden.

Insgesamt wird der Ausbau der Büroflächen, der höchste Standards in Bezug auf Qualität und Ästhetik gewährleistet, allen Nutzerbedürfnissen gerecht.

Möglicher Einzug circa 3 Monate nach Mietvertragsunterschrift

Wir freuen uns auf Ihre Anfrage!

Merkmale

  • Bezug: 3 Monate Innenausbau
  • 4. Geschoss
  • Personenaufzug
  • Bodenbelag: Teppich
+++ MODERNE BÜRO- & GEBÄUDEAUSSTATTUNG +++

- Deckensegel zum Heizen & Kühlen

- Geothermie

- Be- und Entlüftungsanlage

- Teppichboden mit Trittschalleigenschaften (Mieterwunsch kann berücksichtigt werden)

- EDV-Verkabelung über Hohlraumboden (Glasfaseranschluss)

- Bildschirmarbeitsplatzgerechte LED-Beleuchtung

- Außenliegender elektrischer Sonnenschutz (Jalousien)

- Akustik-Gipskarton-Abhangdecke

- Lichtdurchflutete Räume durch bodentiefe Aluminium-Fensterelemente

- Teilweise öffenbare Fensterelemente

- Moderne WC-Kerne in jeder Einheit

- Raumaufteilung nach Mieterwunsch

- Zutrittsberechtigung durch Chip-/Codekarte

- Personenaufzug

- Ausreichend TG-Stellplätze in der hauseigenen Tiefgarage sowie Außenstellplätze (pro 40 qm Mietfläche = 1 Stellplatz)

- Repräsentativer Eingangsbereich im Erdgeschoss

Realisiere Dein Projekt

Bausubstanz und Energie

Der Anbieter hat keine Informationen zum Energieverbrauch bereit gestellt.
  • Baujahr2023
  • Zustand der ImmobilieErstbezug
Immowelt logo

Mietkosten

Monatliche Miete
14,80 €/m²
Provision für Mieter
Bitte beachte, das Angebot kann bei Vertragsabschluss die Zahlung einer Provision beinhalten. Weitere Informationen erhältst Du vom Anbieter.
Kaution
keine Angabe

Lage

address-icon
LohhofUnterschleißheim (85716)
Der Anbieter hat die genaue Adresse nicht freigegeben
- Das Büroobjekt befindet sich in einer erstklassigen Lage in Unterschleißheim, einer dynamischen und aufstrebenden Stadt nördlich von München.

- Die Immobilie liegt in 100 m Luftlinie zur S-Bahn Haltestelle "Lohhof", was eine hervorragende Anbindung an den öffentlichen Nahverkehr gewährleistet.

- Die S1 vom Lohhof bringt Sie in weniger als 20 Minuten zum Flughafen bzw. zum Hauptbahnhof München. Mit dem Pkw erreichen Sie München City in ca. 30 Minuten und den Flughafen in nur ca. 15 Minuten.

- Auch mit dem Auto ist das Büroobjekt leicht erreichbar. Die Autobahnen A92 und A9 liegen in unmittelbarer Nähe und bieten schnelle Verbindungen in alle Richtungen. Parkmöglichkeiten sind am Objekt ausreichend vorhanden, was sowohl für Mitarbeiter als auch für Kunden von Vorteil ist.

Weitere Informationen

Sonstiges Für Fragen oder einen Besichtigungstermin stehen wir Ihnen gerne zur Verfügung.

Alle Angaben sind ohne Gewa?hr und basieren ausschließlich auf Informationen, die uns von unserem Auftraggeber u?bermittelt wurden. Wir u?bernehmen keine Gewa?hr fu?r die Vollsta?ndigkeit, Richtigkeit und Aktualita?t dieser Angaben. Der Energieausweis liegt zur Besichtigung vor. Stichworte Gesamtfläche: 1.589,00 m², Distanz zum Kindergarten: 3.00, Distanz zur Autobahn: 1.00 Sonstiges: EDV-Verkabelung

Weitere Services

Lust auf eine Besichtigung?
Eine Frage zur Immobilie?
Nachricht hinzufügen
Mit der Nutzung der oben angegebenen Telefonnummer oder durch Klicken auf „Kontaktieren“ akzeptierst Du die Allgemeinen Nutzungsbedingungen, denen Du jederzeit widersprechen kannst. Weitere Informationen zum Datenschutz

Über den Anbieter

Anheggerstr. 53, 88131 Lindau
partner badge
6 Jahre Partnerschaft
Herr Tinus BaumannDein Kontakt
Online-ID: 2fxgw55
Referenznummer: 2024_1179_1
FRANK Immobilien GmbH
Bewertung: 3,9 von 5 Sternen
Nachricht hinzufügen
Mit der Nutzung der oben angegebenen Telefonnummer oder durch Klicken auf „Kontaktieren“ akzeptierst Du die Allgemeinen Nutzungsbedingungen, denen Du jederzeit widersprechen kannst. Weitere Informationen zum Datenschutz
Wie zufrieden bist du mit dieser Seite (nicht mit der Immobilie selbst)?