

SGB-Immobilien GmbH
Herr Thomas Becker
042 ···
Nr. anzeigenPreise & Kosten
Provision für Käufer
3,57 inkl. MwSt.
Lage
Brinkum liegt süd-westlich von Bremen in der Gemeinde Stuhr, im so genannten "Speckgürtel" von Bremen. Der Ortsteil Brinkum ist der ideale Ort für Menschen, die die Natur lieben, ausgedehnte Spaziergänge oder Radtouren in die Umgebung unternehmen und dabei nicht auf eine kulturelle Einbindung vor Ort und die Nähe zur...
Das Haus
Kategorie
Reihenmittelhaus
Baujahr
1973
Bezug
sofort
Energie & Heizung
Warum sehe ich diese Anzeige? – Du siehst diese Anzeige basierend auf Ihrer Navigation auf unserer Website und den Suchkriterien, die du verwendet hast.
Energieausweistyp
Bedarfsausweis
Gebäudetyp
Wohngebäude
Baujahr laut Energieausweis
1973
Wesentliche Energieträger
Gas
Gültigkeit
08.01.2017 bis 07.01.2027
Effizienzklasse
F
Endenergiebedarf
196,10 kWh/(m²·a)
Weitere Energiedaten
Haustyp
Massivhaus
Energieträger
Gas
Heizungsart
Zentralheizung
Details
Objektbeschreibung
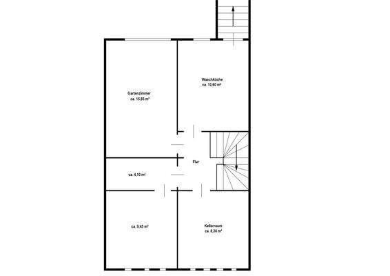
Dieses charmante Reihenhaus befindet sich in einer ruhigen Wohngegend in Stuhr-Brinkum und bietet alles, was das Herz begehrt. Das Haus wurde 1973 erbaut und verfügt über eine Wohnfläche von 120 m² sowie eine Grundstücksfläche von 217 m². Mit insgesamt vier bis fünf Zimmern bietet dieses Haus genügend Platz für eine Familie...
Ausstattung
-Gasheizung aus dem Jahr 2018
-Baujahr: 1973
-Wohnfläche: 120 m²
-Grundstücksfläche: 217 m²
-Erdgeschoss, Obergeschoss, voll ausgebauter Kellerbereich
-Spitzboden
-elegante Kunststeintreppe vom Keller bis zum Obergeschoss
-schöner Garten, großzügige Terrasse, Balkon mit Blick auf den Garten
-Garage
Weitere Informationen
Sonstiges
GELDWÄSCHE: Als Immobilienmaklerunternehmen ist die SGB-Immobilien GmbH nach § 2 Abs. 1 Nr. 14 und § 11 Abs. 1, 2 Geldwäschegesetz (GwG) dazu verpflichtet, bei der Begründung einer Geschäftsbeziehung die Identität des Vertragspartners festzustellen und zu überprüfen, bzw. sobald ein ernsthaftes Interesse an der...
Anbieter der Immobilie
SGB-Immobilien GmbH
Scharnhorststraße 44, 28211 Bremen

Online-ID: 2fzh458
Referenznummer: 93175#pAHBZ
Finde Angebote wie dieses
Hier geht es zu unserem Impressum, den Allgemeinen Geschäftsbedingungen, den Hinweisen zum Datenschutz und nutzungsbasierter Online-Werbung.