

Jones Lang LaSalle SE - Office Leasing Düsseldorf
Frau Nell Ewert
+49 ···
Nr. anzeigenPreise & Kosten
Provision für Mieter
provisionspflichtig für den Mieter/Käufer
Abschreibung/Anlage
Denkmalschutz-Afa
Warum sehe ich diese Anzeige? – Du siehst diese Anzeige basierend auf Ihrer Navigation auf unserer Website und den Suchkriterien, die du verwendet hast.
Lage
Das Objekt liegt im beliebten Stadtteil Pempelfort am nördlichen Rand des Stadtzentrums in unmittelbarer Nähe zum Marienhospital. Die Prinz-Georg-Straße verbindet die Innenstadt mit den nördlichen Stadtteilen Düsseldorfs. Eine Tankstelle befindet sich in der Nähe. Dienstleister des täglichen Bedarfs befinden sich in der...
Büro-/Praxisfläche
Kategorie
Bürofläche
Bezug
Sofort
Details
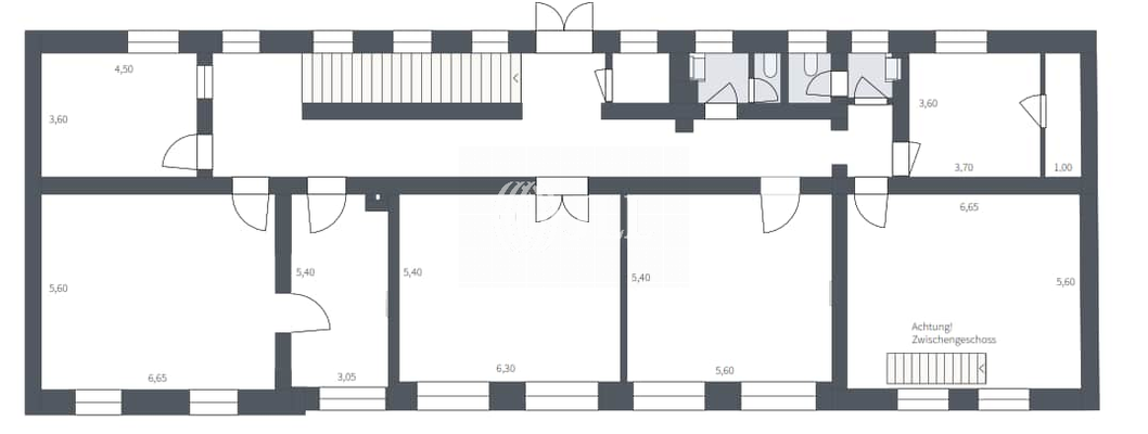
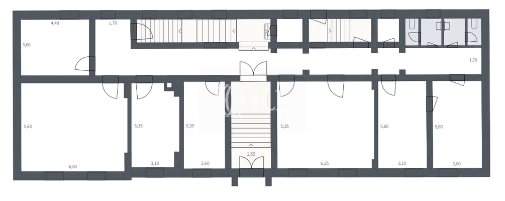
Objektbeschreibung
Dieses historische Gebäude ist nicht nur repräsentativ, sondern auch funktional: auf 3 Etagen besticht es mit seinem Altbaucharme und bietet ausreichend Platz zum Arbeiten. Die hohen Decken mit Stuckverzierung, der herrschaftliche Gesamteindruck mit großzügigen Räumen, reichlich Lagerfläche und die Nähe zur Innenstadt...
Ausstattung
Die Mietflächen sind Teilklimatisiert.
Weitere Informationen
Stichworte
Gesamtfläche: 870,60 m²
Sonstiges: EDV-Verkabelung
Anbieter der Immobilie
Jones Lang LaSalle SE - Office Leasing Düsseldorf
Dreischeibenhaus 1, 40211 Düsseldorf

Online-ID: 2fzxp52
Referenznummer: 4@of7594@14@0
Finde Angebote wie dieses
Hier geht es zu unserem Impressum, den Allgemeinen Geschäftsbedingungen, den Hinweisen zum Datenschutz und nutzungsbasierter Online-Werbung.