
Habak GmbH Jens Gerke
Herr Bernd Konodaj
042 ···
Nr. anzeigenPreise & Kosten
Provision für Käufer
provisionsfrei
Lage
Das Grundstück befindet sich in unverbaubarer Lage in Toppenstedt. (Terrassen mit Süd-West Ausrichtung !)
Toppenstedt liegt in der Samtgemeinde Salzhausen im Landkreis Harburg. Der Ort hat ca. 2000 Einwohner. Einen Kindergarten gibt es direkt im Ort.
In den benachbarten Ortschaften Garstedt und Wulfsen finden...
Das Haus
Kategorie
Doppelhaushälfte
Baujahr
2025
Bezug
nach Vereinbarung
Energie & Heizung
Warum sehe ich diese Anzeige? – Du siehst diese Anzeige basierend auf Ihrer Navigation auf unserer Website und den Suchkriterien, die du verwendet hast.
Weitere Energiedaten
Haustyp
KfW 55, Massivhaus
Heizungsart
Fußbodenheizung, Luft-/Wasser-Wärmepumpe
Details
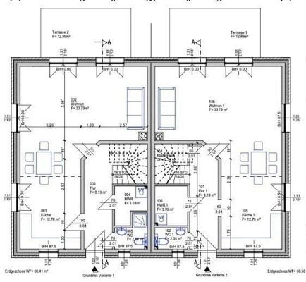
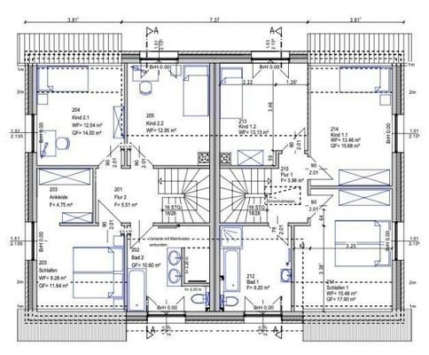
Objektbeschreibung
Dieses geplante Doppelhaus wird in Massivbauweise erstellt. Das Erdgeschoss verfügt über einen großzügigen offenen Wohn- Essbereich. Ein Hauswirtschaftsraum mit Waschmaschinenanschluss und ein Gäste Bad (Dusche im Gäste WC optional möglich) vervollständigen diese Wohnebene. Im Dachgeschoss erwarten Sie ein Vollbad...
Preisinformation
Weitere Informationen
Sonstiges
xxxxx Wir bitten um Verständnis dafür, dass wir nur vollständige, schriftliche Anfragen mit Namen, Anschrift und Telefonnummer beantworten können. xxxxxx
Im schlüsselfertigen Kaufpreis (ohne Maler und Bodenbelagsarbeiten) sind bereits enthalten: Grundstückskosten, zzgl...
Anbieter der Immobilie
Habak GmbH Jens Gerke
Wistedt 16a, 29410 Hansestadt Salzwedel
Online-ID: 2g24f5l
Referenznummer: 2113
Finde Angebote wie dieses
Hier geht es zu unserem Impressum, den Allgemeinen Geschäftsbedingungen, den Hinweisen zum Datenschutz und nutzungsbasierter Online-Werbung.