
Atrium Bauprojekte GmbH
034 ···
Nr. anzeigenPreise & Kosten
Provision für Käufer
provisionsfrei
Lage
KLEINZSCHOCHER
Der Stadtteil bietet eine ausgewogene Mischung aus Natur, Kultur und urbanem Leben, die ihn zu einem attraktiven Wohnort macht.
Bekannt für seine Vielfalt an Wohnmöglichkeiten, von Altbauwohnungen bis hin zu modernen Neubauten, zieht Kleinzschocher Menschen jeden Alters und Lebensstils...
Büro-/Praxisfläche
Kategorie
Praxisfläche
Baujahr
2025
Bezug
2026
Geschoss
Erdgeschoss
Energie & Heizung
Warum sehe ich diese Anzeige? – Du siehst diese Anzeige basierend auf Ihrer Navigation auf unserer Website und den Suchkriterien, die du verwendet hast.
Energieausweistyp
Bedarfsausweis
Gebäudetyp
Wohngebäude
Baujahr laut Energieausweis
2025
Wesentliche Energieträger
Strom
Gültigkeit
01.05.2024 bis 30.12.2025
Effizienzklasse
A+
Endenergiebedarf
9,60 kWh/(m²·a)
Weitere Energiedaten
Haustyp
KfW 40
Energieträger
Elektro, Solar
Heizungsart
Fußbodenheizung, Luft-/Wasser-Wärmepumpe, Zentralheizung
Details
Objektbeschreibung
Unser neues Projekt PARKBLICK befindet sich im Südwesten von Leipzig, im Stadtteil Kleinzschocher.
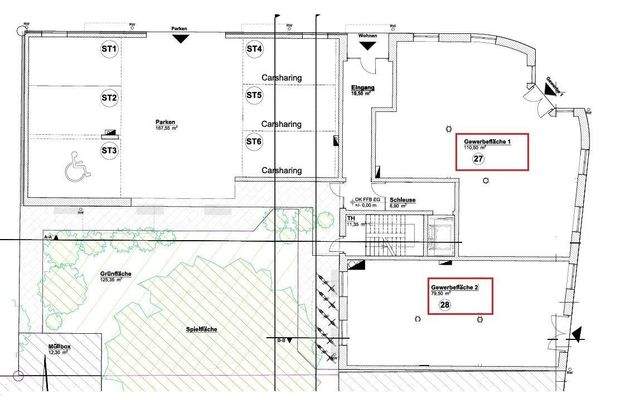
Auf einem Grundstück von ca. 670 m² entstehen 26 hochwertige Eigentumswohnungen und eine nicht störende Gewerbeeinheit im Erdgeschoss mit separatem Zugang.
Das Energieeffizienzhaus erhält das...
Weitere Informationen
Informationen zum Projekt
Liebe Interessenten,
in unserem Wohngebäude PARKBLICK gibt es die Möglichkeit eine hochmoderne Arztpraxis, Büro oder sonstige Gewerbeeinheit, was zu dem Projekt passt, für Sie als perfekten "Maßanzug" zu gestalten.
Mit Ihrem neuen Gewerbestandort werden Sie der Blickfang am...
Anbieter der Immobilie
Online-ID: 2g34u55
Referenznummer: Gewerbe 2_80
Finde Angebote wie dieses
Hier geht es zu unserem Impressum, den Allgemeinen Geschäftsbedingungen, den Hinweisen zum Datenschutz und nutzungsbasierter Online-Werbung.