

nowo Immobilien GmbH
Herr Frank May
053 ···
Nr. anzeigenPreise & Kosten
Provision für Käufer
2,38 (inkl MwSt.)
Lage
Die Gemeinde Weyhausen befindet sich im Landkreis Gifhorn in Niedersachsen und zählt rund 2.400 Einwohner. Das Objekt befindet sich im beliebten Neubau-Gebiet am Mühlenweg in Weyhausen. Direkt im Umfeld befindet sich ein großes Verbrauchermarktzentrum, Ärzte, der Neubau einer Kita, eine Grundschule, die Wolfsburger Innenstadt...
Das Haus
Kategorie
Doppelhaushälfte
Baujahr
2024
Energie & Heizung
Warum sehe ich diese Anzeige? – Du siehst diese Anzeige basierend auf Ihrer Navigation auf unserer Website und den Suchkriterien, die du verwendet hast.
Energieausweistyp
Bedarfsausweis
Gebäudetyp
Wohngebäude
Wesentliche Energieträger
Strom
Gültigkeit
03.03.2024 bis 02.03.2034
Endenergiebedarf
8,10 kWh/(m²·a)
Weitere Energiedaten
Energieträger
Elektro
Details
Objektbeschreibung
Bei diesem Neubauprojekt handelt es sich um eine bezugsfertige Doppelhaushälfte im beliebten Neubau-Gebiet in Weyhausen. Die schlüsselfertige Übergabe der Doppelhaushälfte ist bereits im Kaufpreis inbegriffen.
** Detaillierte Informationen erhalten Sie in unserem Web-Exposé. Wir freuen uns auf Ihre Anfrage. **
Ausstattung
z. B.
Malerarbeiten in allen Räumen
dreifach verglaste Kunststofffenster
elektrische Rollläden
Fußbodenheizung
** Detaillierte Informationen erhalten Sie in unserem Web-Exposé. Wir freuen uns auf Ihre Anfrage. **
Weitere Informationen
Sonstiges
Die Energieausweisdaten finden Sie zusätzlich in unserer Bildergalerie.
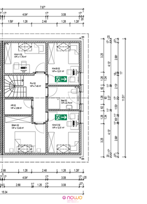
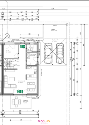
Bitte beachten Sie, dass es sich in den Grundrissen um Möblierungsvorschläge handelt. Die evtl. tatsächlich in der Immobilie befindliche Möblierung ist, sofern nicht anders erwähnt, nicht Bestandteil des...
Anbieter der Immobilie
nowo Immobilien GmbH
Kuhstraße 25, 38100 Braunschweig

Online-ID: 2g3r254
Referenznummer: 10268
Finde Angebote wie dieses
Hier geht es zu unserem Impressum, den Allgemeinen Geschäftsbedingungen, den Hinweisen zum Datenschutz und nutzungsbasierter Online-Werbung.