

Bürofläche zur MieteMietkosten auf Anfrage1.100 m² Bürofläche • teilbar ab 1.100 m²
Mietkosten auf Anfrage
1.100 m² Bürofläche • teilbar ab 1.100 m²
LOGISTIK | BÜROFLÄCHE | ZEITNAH VERFÜGBAR
Merkmale
- 350 Stellplätze
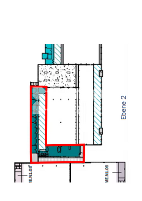
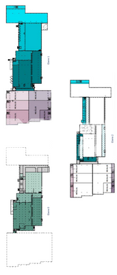
Grundrisse
Grundrisse
1 / 4
Realisiere Dein Projekt
Bausubstanz und Energie
Der Anbieter hat keine Informationen zum Energieverbrauch bereit gestellt.
- Baujahr1974
- Zustand der Immobilieneuwertig
Mietkosten
Miete auf Anfrage
Provision für Mieter
provisionspflichtig für den Mieter
Kaution
keine Angabe
Lage

Oberschleißheim (85764)
Der Anbieter hat die genaue Adresse nicht freigegeben
Weitere Informationen
Weitere Services
Lust auf eine Besichtigung?
Eine Frage zur Immobilie?
Über den Anbieter
Knight Frank GmbH & Co. KGMaklerbüro
Prinzregentenstr. 22, 80538 München
6 Jahre Partnerschaft
Frau Vivien GüvenirDein Kontakt
Online-ID: 2g56g5q
Referenznummer: P2357

Knight Frank GmbH & Co. KG
Wie zufrieden bist du mit dieser Seite (nicht mit der Immobilie selbst)?

