

WS Systembau GmbH
Frau Kerstin Dworschak
063 ···
Nr. anzeigenPreise & Kosten
Provision für Käufer
provisionsfrei
Lage
Die Gemeinde Römerberg liegt südlich von Speyer und ist umringt von den Nachbargemeinden Schwegenheim, Lingenfeld, Harthausen und Dudenhofen. Durch den ortseigenen Bahnhof ist Römerberg ideal für Berufspendler mit Verbindungen nach Speyer (5 Minuten), Germersheim (12 Minuten), Bruchsal (45 Minuten), Ludwigshafen (25 Minuten)...
Das Haus
Kategorie
Doppelhaushälfte
Geschosse
3 Geschosse
Baujahr
2025
Bezug
2025
Energie & Heizung
Warum sehe ich diese Anzeige? – Du siehst diese Anzeige basierend auf Ihrer Navigation auf unserer Website und den Suchkriterien, die du verwendet hast.
Weitere Energiedaten
Haustyp
Massivhaus
Details
Objektbeschreibung
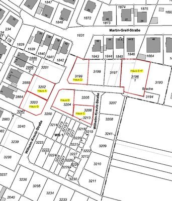
Im Neubaugebiet von Römerberg errichten wir:
- Bauabschnitt A | Flurstück 3202 | 2 Doppelhaushälften (A)
- Bauabschnitt B | Flurstück 3204 | 2 Doppelhaushälften (B)
- Bauabschnitt C | Flurstück 3206 | 1 Einfamilienhaus (C)
- Bauabschnitt D | Flurstück 3199 | 2 Doppelhaushälften (D)
- Bauschnitt E+F |...
Ausstattung
- Massivbauweise,
- Erschließung,
- Hausanschlüsse,
- Offenes Studio im Dachgeschoss,
- Innentreppe mit massiven Echtholzstufen,
- Fenster in WC und Bad mit Satinato-Verglasung,
- Innenfensterbänke in Gussmarmor,
- Sanitäreinrichtungsgegenstände Renova Plan und Grohe,
- Außenzapfstelle frostsicher...
Weitere Informationen
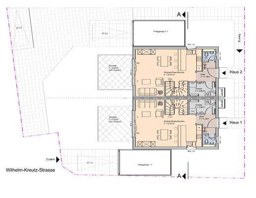
Wohneinheiten
- Haus E1 | Wohnfläche 128m² | Grundstücksanteil 228m² | *verkauft*
- Haus E2 | Wohnfläche 128m² | Grundstücksanteil 205m² | *verkauft*
- Haus F3 | Wohnfläche 128m² | Grundstücksanteil 197m² | 524.990 €
- Haus F4 | Wohnfläche 128m² | Grundstücksanteil 297m² | *verkauft*
Exposé...
Anbieter der Immobilie

WS Systembau GmbH
Rudolf-Diesel-Straße 29a, 67454 Haßloch

Online-ID: 2g62c5u
Referenznummer: 15005/E2
Finde Angebote wie dieses
Hier geht es zu unserem Impressum, den Allgemeinen Geschäftsbedingungen, den Hinweisen zum Datenschutz und nutzungsbasierter Online-Werbung.