

abc Specht GmbH & Co. KG - Immobilienmakler
Herr Maximilian Specht
(02 ···
Nr. anzeigenPreise & Kosten
Provision für Käufer
Bitte beachte, das Angebot kann bei Vertragsabschluss die Zahlung einer Provision beinhalten. Weitere Informationen erhältst Du vom Anbieter.
Lage
Die Wohnanlage liegt in einer attraktiven und ruhigen Lage am Johannesweg in Nastätten, mit einem wunderschönen Fernblick. Nastätten bietet eine hervorragende Infrastruktur mit vielfältigen Einkaufsmöglichkeiten, medizinischer Versorgung und Freizeitangeboten in unmittelbarer Nähe. Die grüne Umgebung lädt zu Spaziergängen und...
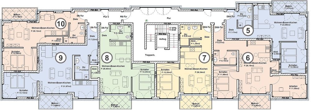
Die Wohnung
Wohnungslage
1. Geschoss
Wohnanlage
Energie & Heizung
Warum sehe ich diese Anzeige? – Du siehst diese Anzeige basierend auf Ihrer Navigation auf unserer Website und den Suchkriterien, die du verwendet hast.
Energieausweistyp
Bedarfsausweis
Gebäudetyp
Wohngebäude
Baujahr laut Energieausweis
2022
Wesentliche Energieträger
GAS
Effizienzklasse
A
Endenergiebedarf
42,00 kWh/(m²·a)
Details
Objektbeschreibung
Willkommen in Ihrer neuen Anlageimmobilie im Johannesweg 5-9 in 56355 Nastätten. Diese exklusive Wohnanlage, erbaut im Oktober 2022, umfasst drei Gebäude mit insgesamt 32 hochwertig ausgestatteten Eigentumswohnungen, die speziell für seniorengerechtes Wohnen konzipiert sind. Jede Wohnung bietet den Komfort und die Sicherheit...
Ausstattung
.Dreifach-isolierverglaste Kunststoff-Fenster und elektrische Rollläden
.Fußbodenheizung mit Einzelraumregelung
.Hochwertige Ausstattungsmerkmale
.Breite Innentüren und barrierefreie Zugänge
.Jede Wohnung verfügt über einen Balkon, eine Terrasse oder eine Dachterrasse
.Eigene Kellerräume für jede...
Preisinformation
Ist-Mieteinnahmen pro Jahr: 5.668,20 EUR
Weitere Informationen
Sonstiges
Diese exklusive Wohnanlage ist ideal für Investoren, die auf der Suche nach sicheren und lukrativen Anlageobjekten sind. Die hochwertigen Eigentumswohnungen und die durchdachte Ausstattung gewährleisten ein angenehmes und sicheres Wohngefühl für die Mieter. Vereinbaren Sie noch heute einen Besichtigungstermin und...
Anbieter der Immobilie

Online-ID: 2g6dt52
Referenznummer: NST-STAMM3_7
Finde Angebote wie dieses
Hier geht es zu unserem Impressum, den Allgemeinen Geschäftsbedingungen, den Hinweisen zum Datenschutz und nutzungsbasierter Online-Werbung.