eurea Real Estates GmbH

Herr Stefan Schmiedseder

Hochwertiges Büro im 1.OG in TOP Frequenzlage direkt an der Autobahnabfahrt Vorchdorf!

auf Anfrage
Kaufpreis
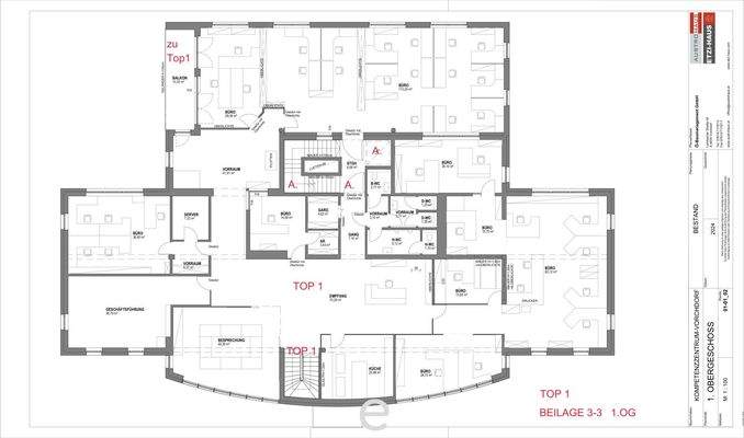
614 m²
Bürofläche ca.
k.A.
Teilbare Fläche
k.A.
Zimmer

Der Anbieter dieses Objekts hat gegenüber der AVIV Germany GmbH als Betreiber dieses Online-Marktplatzes erklärt, nicht als Unternehmer im Sinne des § 1 KSchG zu handeln. Die im Verbraucherschutzrecht der Union verankerten Verbraucherrechte (insbesondere Informationspflichten und Rücktritts- bzw. Widerrufsrechte) finden auf den Vertrag zwischen dem Anbieter des Objekts und Ihnen (dem Interessenten) keine Anwendung.

Gewerblicher Anbieter

Der Anbieter dieses Objekts hat gegenüber der AVIV Germany GmbH als Betreiber dieses Online-Marktplatzes erklärt, als Unternehmer im Sinne des § 1 KSchG zu handeln.

AdresseLambacherstraße 40
4655 Vorchdorf 
Auf Karte ansehen

Preise & Kosten

Kaufpreis auf Anfrage

Provision für Käufer

Bitte beachte, das Angebot kann bei Vertragsabschluss die Zahlung einer Provision beinhalten. Weitere Informationen erhältst Du vom Anbieter.

Lage

Die Immobilie befindet sich direkt am Kreisverkehr bei der Autobahnabfahrt Vorchdorf und bietet daher eine optimale Verkehrsanbindung und Sichtbarkeit.
Vorchdorf ist eine Gemeinde im Bezirk Gmunden in Oberösterreich und liegt zwischen Linz und Salzburg. Die Immobilie liegt in zentraler Lage in der Nähe verschiedener...

Mehr anzeigen

Büro-/Praxisfläche

Baujahr

2008

Bezug

sofort

  • gepflegt, Neubau
  • 18 Stellplätze

Details

Objektbeschreibung

Modernes Büro in Vorchdorf zu Verkaufen!

Die Immobilie befindet sich direkt am Kreisverkehr bei der Autobahnabfahrt Vorchdorf und bietet daher eine optimale Verkehrsanbindung und Sichtbarkeit.
Die großzügige Bürofläche umfasst insgesamt 614m² im 1. OG eines modernen Gebäudes in...

Mehr anzeigen

Preisinformation

18 Stellplätze

Weitere Informationen

Stichworte
Stellplatz vorhanden, Lagerfläche: 32,90 m², Nutzfläche: 614,00 m², Kellerfläche: 248,00 m², Bundesland: Oberösterreich, 2 Etagen

Anbieter der Immobilie

Partner

eurea Real Estates GmbH

Hans-Sachs-Straße 1a, 4600 WELS

user

Herr Stefan Schmiedseder

Dein Ansprechpartner

Anbieter-Website Anbieter-Profil Anbieter-Impressum

Online-ID: 2g6js5t

Referenznummer: OBGC20241116130700374e00825caf8

Finde Angebote wie dieses

imageimageimage

Hier geht es zu unserem Impressum, den Allgemeinen Geschäftsbedingungen, den Hinweisen zum Datenschutz und nutzungsbasierter Online-Werbung.