

ScanHaus Marlow
Herr Birger Rohde
016 ···
Nr. anzeigenPreise & Kosten
Provision für Käufer
provisionsfrei
Lage
Über Uns
Was ScanHaus besonders macht !
ScanHaus Marlow ist einer der führenden Anbieter von modernen und umweltfreundlichen Fertighäusern und baut im Jahr 650 bis 700 Häuser. Wir bieten Ihnen mehr als 70 attraktive Fertighaus-Haustypen in modernster Holzrahmenbauweise/Holzständerbauweise.
In einem unser über...
Das Haus
Baujahr
2025
Energie & Heizung
Warum sehe ich diese Anzeige? – Du siehst diese Anzeige basierend auf Ihrer Navigation auf unserer Website und den Suchkriterien, die du verwendet hast.
Weitere Energiedaten
Haustyp
Fertighaus, KfW 40
Energieträger
Elektro, Solar
Heizungsart
Fußbodenheizung, Luft-/Wasser-Wärmepumpe
Details
Objektbeschreibung
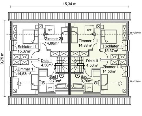
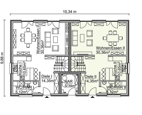
Bauen Sie ein Mehrfamilienhaus zusammen mit Freunden oder der Familie und teilen Sie sich so die Baukosten.
Was ist enthalten ?
Dieses Inserat ist als Hälfte des Mehrfamilienhauses SH 244 im technikfertigen Zustand berechnet.
- inkl. Bodenplatte
- inkl. Architektenleistungen inkl...
Weitere Informationen
Kontakt
Kontakt
Ich berate Sie gerne um Ihren TRAUM vom Eigenheim nach Ihren Wünschen und Vorstellungen zu verwirklichen.
Zögern Sie nicht einen unverbindlichen Beratungstermin mit mir zu vereinbaren:
Herr Aaron Sykora - Hausberater
Tel.: 0176/41771291
Email: Sykora@scanhaus.de
Von der...
Anbieter der Immobilie
ScanHaus Marlow
An der Schule 86, 12623 Berlin-Mahlsdorf

Online-ID: 2g6wr57
Referenznummer: A.S 28.9.24 244EW VA
Finde Angebote wie dieses
Hier geht es zu unserem Impressum, den Allgemeinen Geschäftsbedingungen, den Hinweisen zum Datenschutz und nutzungsbasierter Online-Werbung.