




Penthouse zum Kauf • provisionsfrei437000 €3.144 €/m²3 Zimmer • 139 m²
437000 €
3.144 €/m²
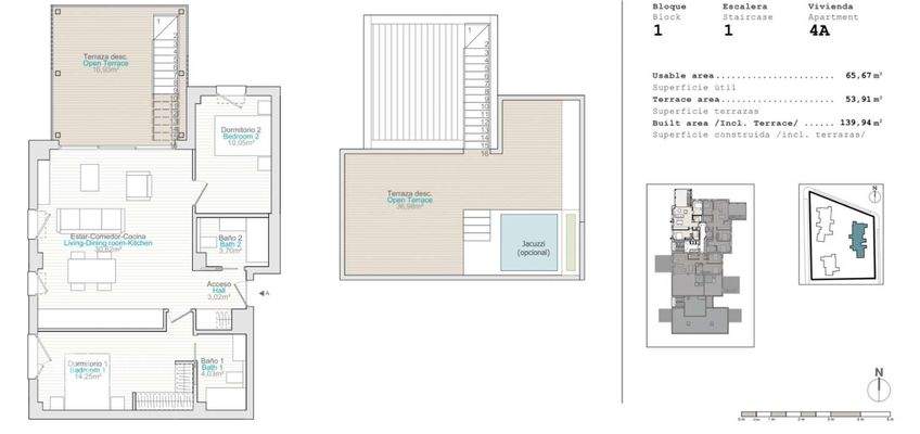
3 Zimmer • 139 m²
Luxuriöses Penthaus mit atemberaubender Sicht
Merkmale
- Garten
- Terrasse
Grundrisse
Grundrisse
1 / 1
Realisiere Dein Projekt
Bausubstanz und Energie
Der Anbieter hat keine Informationen zum Energieverbrauch bereit gestellt.
- Zustand der ImmobilieNeubau
Preisdetails
Kaufpreis
437000 €
3.143,88 €/m²
Provision für Käufer
provisionsfrei; Für Käufer provisionsfrei
Lage

Dénia (03700)
Der Anbieter hat die genaue Adresse nicht freigegeben
Weitere Informationen
Weitere Services
Lust auf eine Besichtigung?
Eine Frage zur Immobilie?
Über den Anbieter
FALC Real EstateMaklerbüro
Calle Marbella 53, 07610 Palma de Mallorca
Partnerschaft
Herr Sven Robespierré HansenDein Kontakt
Online-ID: 2g74h5x
Referenznummer: FALC-SvHa-51615
Wie zufrieden bist du mit dieser Seite (nicht mit der Immobilie selbst)?



